多古町 N様邸
~光と木のやさしさに包まれた、家族の笑顔があふれる家~
当社が建築したこちらの住まいは、落ち着いた色とやわらかな木目が調和した二階建てです。
明るいリビングには陽光が差し込み、家族の会話が自然と生まれるあたたかな空間に。
休日は庭で子どもたちが遊び、庭でランチやBBQを楽しむ穏やかな時間が流れます。
キッチンは家全体を見渡せる配置で、家事をしながら家族と過ごせる工夫も。
毎日の暮らしの中に、やさしさと安心が満ちる住まいです。
|
シンプルモダンな外観が映える、自然に包まれた心地よい住まい。 ※外構はAIで作成されたイメージです。 |
木の温もりを感じる玄関が、家族とゲストを心地よく迎え入れます。 ※インテリアはAIで作成されたイメージです。 |
|
優しいブルーのアクセントクロスが映える、家族の時間を彩る明るいリビング。 ※インテリアはAIで作成されたイメージです。 |
木のぬくもりと柔らかな光に包まれる、心地よいベッドルーム。 ※インテリアはAIで作成されたイメージです。 |
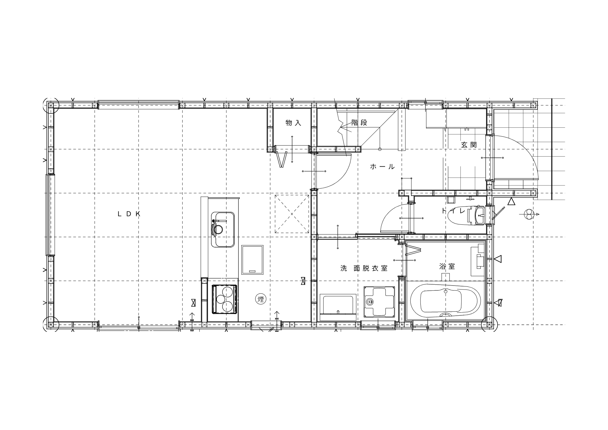
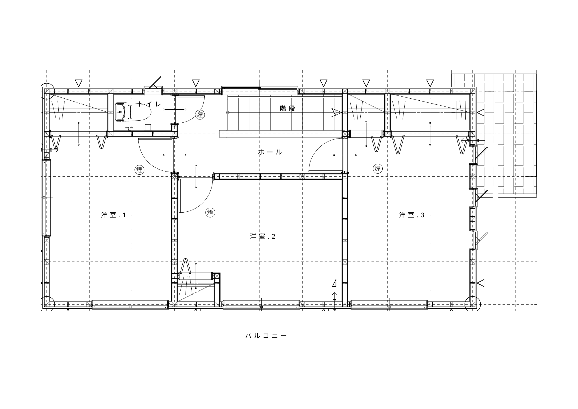
間取り紹介
|
1階
|
2階
|
らら♪ハウスなら、プランを選んで、ある程度の間取り変更ができます!
★階段の位置さえ動かさなければ、間取りを自由に変更できます。
(!)こんな場合は追加料金が発生します。
・室内ドアを追加したり、収納を増やしたりした場合、設計変更料はかかりませんが、オプション費用がかかります。
・外観の形状を変えて面積を減らした場合、設計変更料がかかります。そこから減少分を差し引きます。
設計変更料金がどのような場合にかかるか詳しく知りたい方はこちらへ
▼その他の施工事例写真はこちら
|
|
|
![]() |
|
|
|
|
|
|
|
|
|
|
|
|
|
|
|
|
|
|
|
|
|
|
|
|
|
|
|




























