No.51 和モダン×収納上手 家事ラク動線の快適プラン
2階建て 4LDK 39.95坪


間取り紹介
|
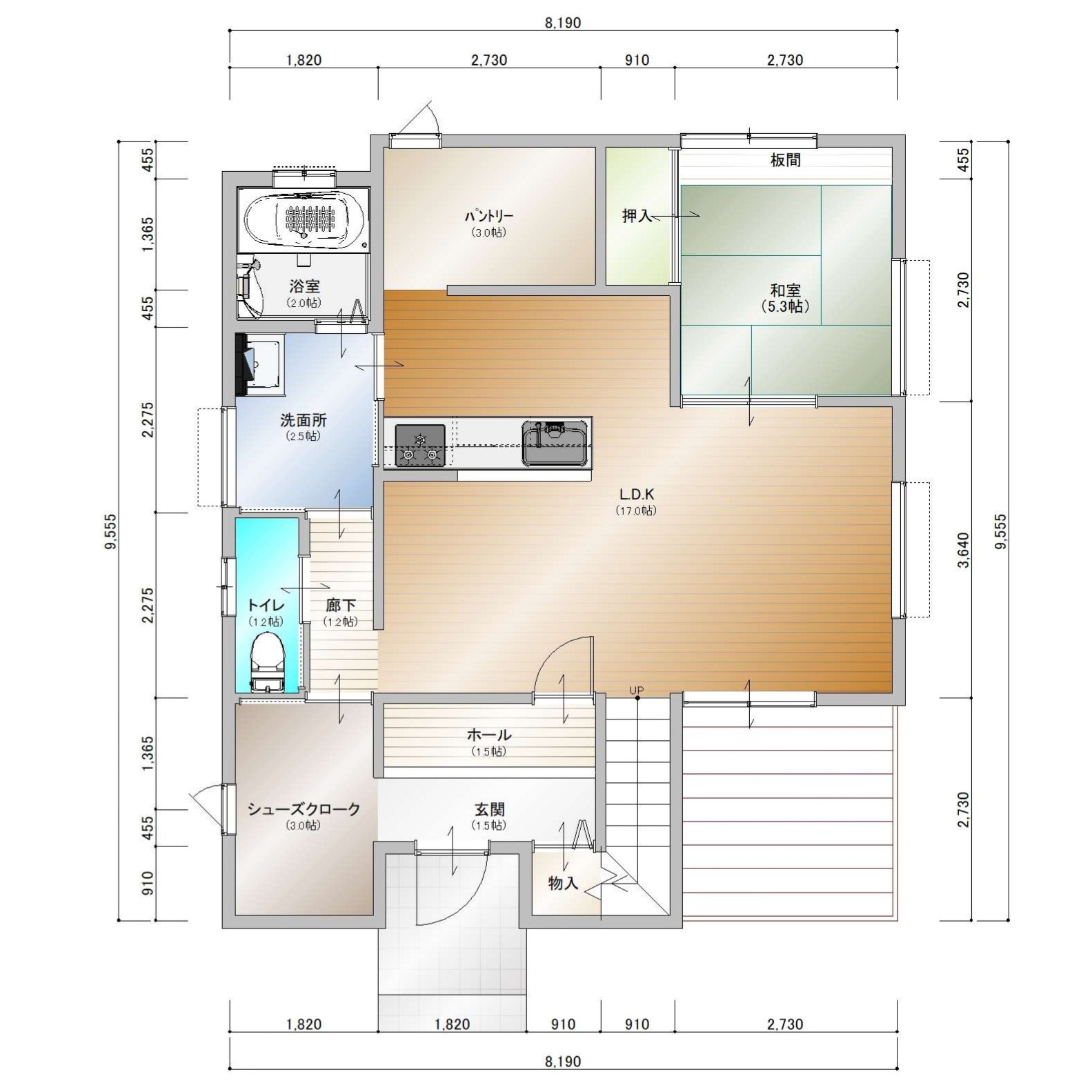
1階
|
2階
|
★このプランのポイント
・和室とLDKがゆるやかにつながる心地よい空間設計
リビング横の5.3帖の和室は、来客対応やお昼寝スペースなど多目的に活躍。引き戸を開ければLDKと一体化して広々と使えます。
・家事がスムーズな一直線動線
キッチンから洗面室・浴室までが一直線につながる設計で、家事や入浴準備がラクラク。忙しい毎日を効率よくサポートします。
・豊富な収納でスッキリ暮らせる
玄関のシューズクローク、パントリー、階段下収納、主寝室の大型クローゼットなど、家中に収納をしっかり確保。片付け上手な住まいです。
参考価格
◆ 建物本体価格 約19,459,107円(税込)
◆ 標準付帯工事価格 約4,378,000円(税込)
+土地代金
※上記は、参考価格になります。その他付帯工事の料金は含まれていません。
また、プラン内容には標準仕様だけでなくオプションが含まれている場合があります。
-上記の価格に含まれていないものはこちら―
カーテン&カーテンレール・浄化槽設置工事・駐車場工事・犬走り・補助金申請代行料・土地の仲介手数料・エアコンとエアコンの用の穴あけ・井戸掘り・フェンス工事・ポスト・都市ガスまたはガス会社を指定する場合・農地申請や開発許可等の各種申請費用・アンテナ工事・オール電化仕様に変更・室内の照明器具・フラット35申請や検査等一式費用・登記費用・測量費用・本下水への接続費用・上水道取り出し・地盤改良工事・間取り変更・住宅ローン手数料 等
この商品プランについて知りたい方はこちらへ


