多古町 H様邸
~家族の距離がちょうどいい、平屋の住まい~
ご夫婦と娘さん、三人家族にちょうどいい平屋住宅。
ワンフロアの暮らしやすい動線と、木目が映える外観が、
家族の毎日をやさしく支えます。
将来まで安心の住まいです。
永く快適に暮らせる理想的な家です。
|
明るいレンガ調の外観がかわいらしい住まい ※外構はAIで作成されたイメージです。 |
広くて開放感のある玄関 ※インテリアはAIで作成されたイメージです。 |
|
広いリビングと階段がつながり、暮らしを豊かにしてくれます ※インテリアはAIで作成されたイメージです。 |
大きな窓から光が差し込む、明るく心地よい寝室 ※インテリアはAIで作成されたイメージです。 |
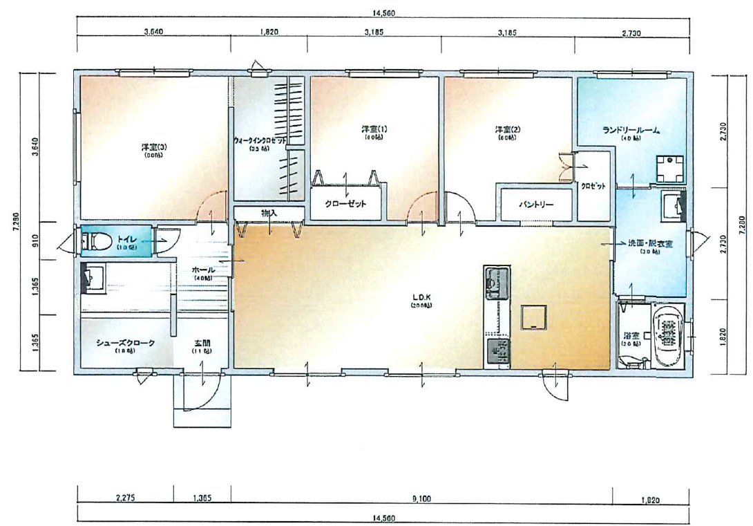
間取り紹介
|
お客様が選んだプラン №36
1階 |
|
|
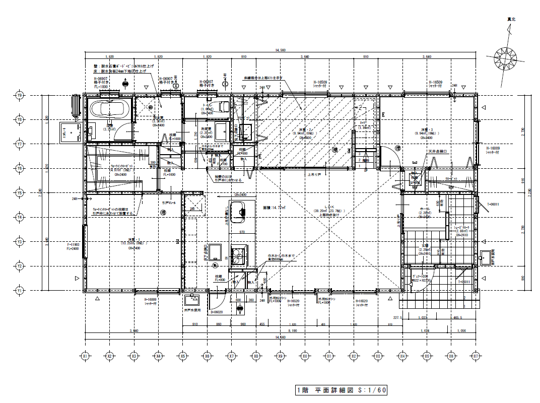
プラン変更後
1階 |
R階 変更箇所 |
らら♪ハウスなら、プランを選んで、ある程度の間取り変更ができます!
★階段の位置さえ動かさなければ、間取りを自由に変更できます。
(!)こんな場合は追加料金が発生します。
・室内ドアを追加したり、収納を増やしたりした場合、設計変更料はかかりませんが、オプション費用がかかります。
・外観の形状を変えて面積を減らした場合、設計変更料がかかります。そこから減少分を差し引きます。
設計変更料金がどのような場合にかかるか詳しく知りたい方はこちらへ
▼その他の施工事例写真はこちら
|
|
|
![]() |
|
|
|
|
|
|
|
|
|
|
|
|
|
|
|
|
|
|
|
|
|
|
|
|
|
|
|
|
|
|
|
|
|
|
|
|





































