多古町 自社モデルハウス【売却済み】
|
シンプルモダンなフォルムが際立つ、存在感のあるスタイリッシュな住まい ※外構はAIで作成されたイメージです。 |
花柄のアクセントクロスがやさしく迎えてくれる、華やぎのある玄関 |
|
畳スペースを隣に備えた、家族の時間をゆったり楽しめるリビング
|
落ち着いたブラウンとアクセントクロスが心地よさを演出する大人の空間 ※インテリアはAIで作成されたイメージです。 |
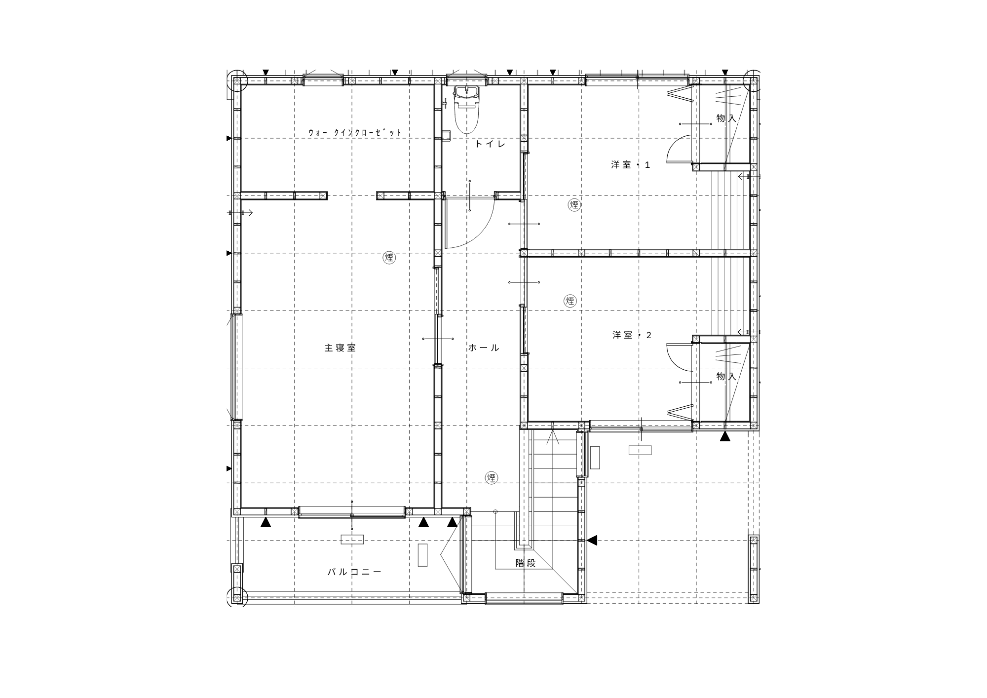
間取り紹介
|
1階
|
2階
|
らら♪ハウスなら、プランを選んで、ある程度の間取り変更ができます!
★階段の位置さえ動かさなければ、間取りを自由に変更できます。
(!)こんな場合は追加料金が発生します。
・室内ドアを追加したり、収納を増やしたりした場合、設計変更料は掛かりませんが、オプション費用がかかります。
・外観の形状を変えて面積を減らした場合、設計変更料がかかります。そこから減少分を差し引きます。
設計変更料金がどのような場合にかかるか詳しく知りたい方はこちらへ
▼その他の施工事例写真はこちら
|
|
|
![]() |
|
|
|
|
![]() |
|
|
|
|
![]() |
|
|
|
![]() |
![]() |
![]() |
![]() |
![]() |
![]() |
![]() |
|
|
|
|
|
![]() |
|
|
![]() |
|
|
![]() |
|
|
![]() |
|
|
![]() |
|
|








































