外壁・サイディング
※掲載している仕様は、予告なく変更となる場合があります。
外壁・サイディングについて
壁は、窯業系のサイディングです。
「窯業系サイディング」とは、セメント質原料や繊維質原料を混ぜて板状に成型した外壁材です。
機能性と施工性に優れていることが特徴で、フラットなデザインから、タイル柄や木目柄、金属のような質感を表現したものなど、豊富なデザインとカラーバリエーションがあることも魅力です。
窯業系サイディング
1防火性、耐火性が高い
2.衝撃や地震の揺れに強い
3.デザイン、価格のバリエーションが多い
4.施工が容易で施工費もリーズナブル
5.汚れが付きにくい
6.外壁材の塗り直しと目地やシーリングのメンテナンスが必要
※本体の厚みや表面塗装の性能差から、商品の価格帯は幅広くなっています。工場生産なので品質が安定しており、施工にかかる費用がリーズナブルな外壁材です。
メンテナンス性を左右するのは、表面塗装の性能と目地に使うシーリングの品質。これまでは10~15年スパンでの再塗装が推薦されていましたが、最近は色あせや劣化の原因となる紫外線からの保護機能が備わった、再塗装の必要性が少ない窯業系サイディングも登場してきています。

雨で汚れを洗い流す、親水コート仕様の外壁材
親水コートの表層は水になじみやすい親水基に覆われています。雨が降れば親水基が汚れとの間に雨水を入り込みやすくするため、壁に付着した汚れが浮き上がり、雨水と一緒に洗い流します。

汚れを落とすメカニズム

□ネオロック・親水/エクセレージ・親水/フィルテクト・親水/セラディール・親水の防汚効果は弊社従来品と比較し排気ガスや埃、に対して効果を発揮しますが、多量に供給される環境下な洗浄効果は発揮されない場合があります。
なお、錆やカビ・苔・藻の発生に砂塵に対しては十分な洗浄効果は発揮されません。特に汚れが集中しやすい窓サッシ下には、ツタワンD・ツタワンDⅡやロングツタワンDのご使用をおすすめいたします。
※汚れが気になる場合は、中性洗剤とスポンジを使って水洗いすることで汚れを落とすことが可能です。
規格住宅でもここまでできる、お客様のこだわりの外観
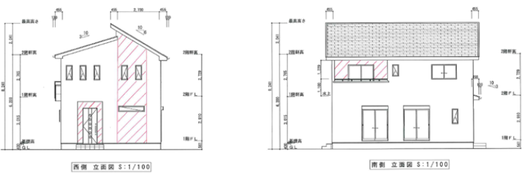
外壁は、張り分けができます!
立面図に、張り分けたいサイディングを朱書きで指示



貼り分け位置・カラーがイメージ通りかどうか
シュミレーションサイトで事前に確認できます!
