No.48 和のくつろぎと開放感が調和する家
2階建て 4LDK 36.32坪


間取り紹介
|
1階
|
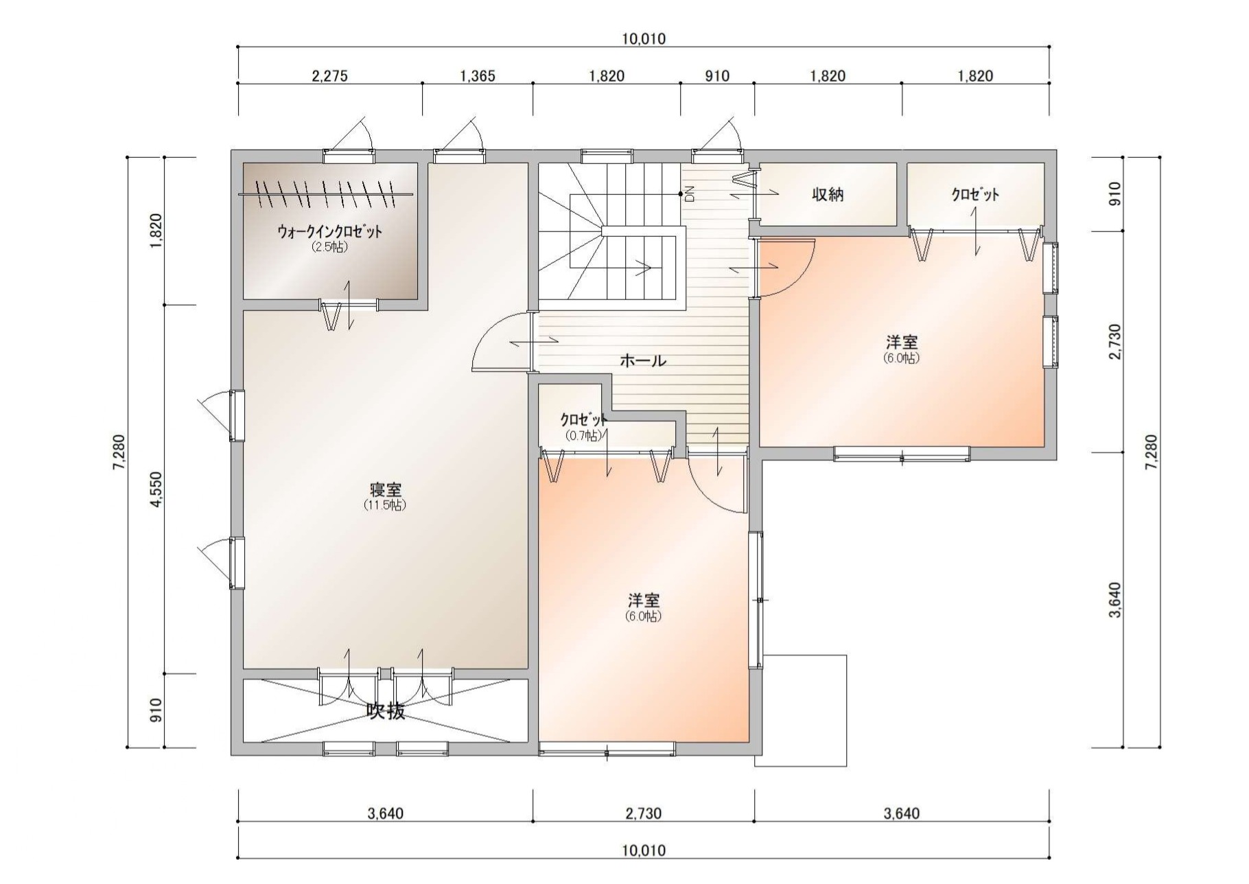
2階
|
★このプランのポイント
・仏間付きのタタミコーナーで家族のつながりを大切に
LDKとつながる位置にあるタタミコーナーは、くつろぎスペースにも来客対応にも便利。仏間付きでご両親世代との同居にも安心です。
・主寝室は11.5帖+ウォークインクローゼット付きの贅沢空間
2階の主寝室はゆとりの広さで、ワークスペースや趣味コーナーも設けられる快適設計。大容量の収納でお部屋もすっきり。
・家事ラク動線で毎日の暮らしをスマートに
キッチンから洗面・浴室が一直線につながる効率的な動線。忙しい朝や家事の合間もスムーズに動けます。
参考価格
◆ 建物本体価格 約17,746,872円(税込)
◆ 標準付帯工事価格 約4,378,000円(税込)
+土地代金
※上記は、参考価格になります。その他付帯工事の料金は含まれていません。
また、プラン内容には標準仕様だけでなくオプションが含まれている場合があります。
-上記の価格に含まれていないものはこちら―
カーテン&カーテンレール・浄化槽設置工事・駐車場工事・犬走り・補助金申請代行料・土地の仲介手数料・エアコンとエアコンの用の穴あけ・井戸掘り・フェンス工事・ポスト・都市ガスまたはガス会社を指定する場合・農地申請や開発許可等の各種申請費用・アンテナ工事・オール電化仕様に変更・室内の照明器具・フラット35申請や検査等一式費用・登記費用・測量費用・本下水への接続費用・上水道取り出し・地盤改良工事・間取り変更・住宅ローン手数料 等
この商品プランについて知りたい方はこちらへ


