成田市 K様邸
~グレーを基調にしたスタイリッシュで現代的なデザイン~
この家に暮らすのは、若いご夫婦です。
「無駄のない間取りで収納も十分」な家でキッチンと水まわりが近いので、家事同時進行がしやすい間取りになっています。
16帖LDKで過ごしやすく、家族が集まり気配を感じられるあたたかい暮らしが出来るお家です
穏やかな毎日を、やさしく見守る家です。
|
グレーを軸にしたシックでスタイリッシュなお家 ※外構はAIで作成されたイメージです。 |
広くて開放感のある玄関 ※インテリアはAIで作成されたイメージです。 |
|
日当たりが良く広く解放的なリビング ※インテリアはAIで作成されたイメージです。 |
大きな窓から光が差し込む、明るく心地よい寝室 ※インテリアはAIで作成されたイメージです。 |
間取り紹介
|
お客様が選んだプラン №6
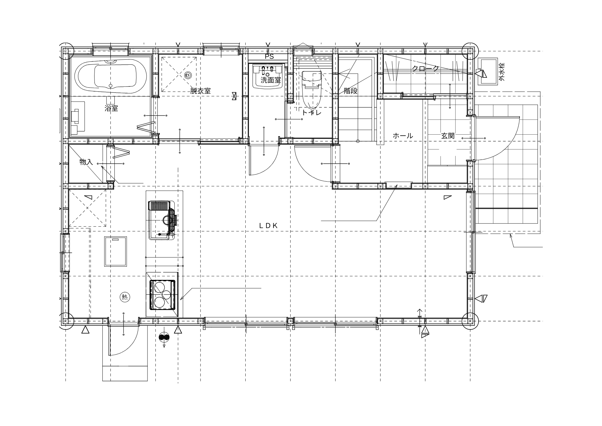
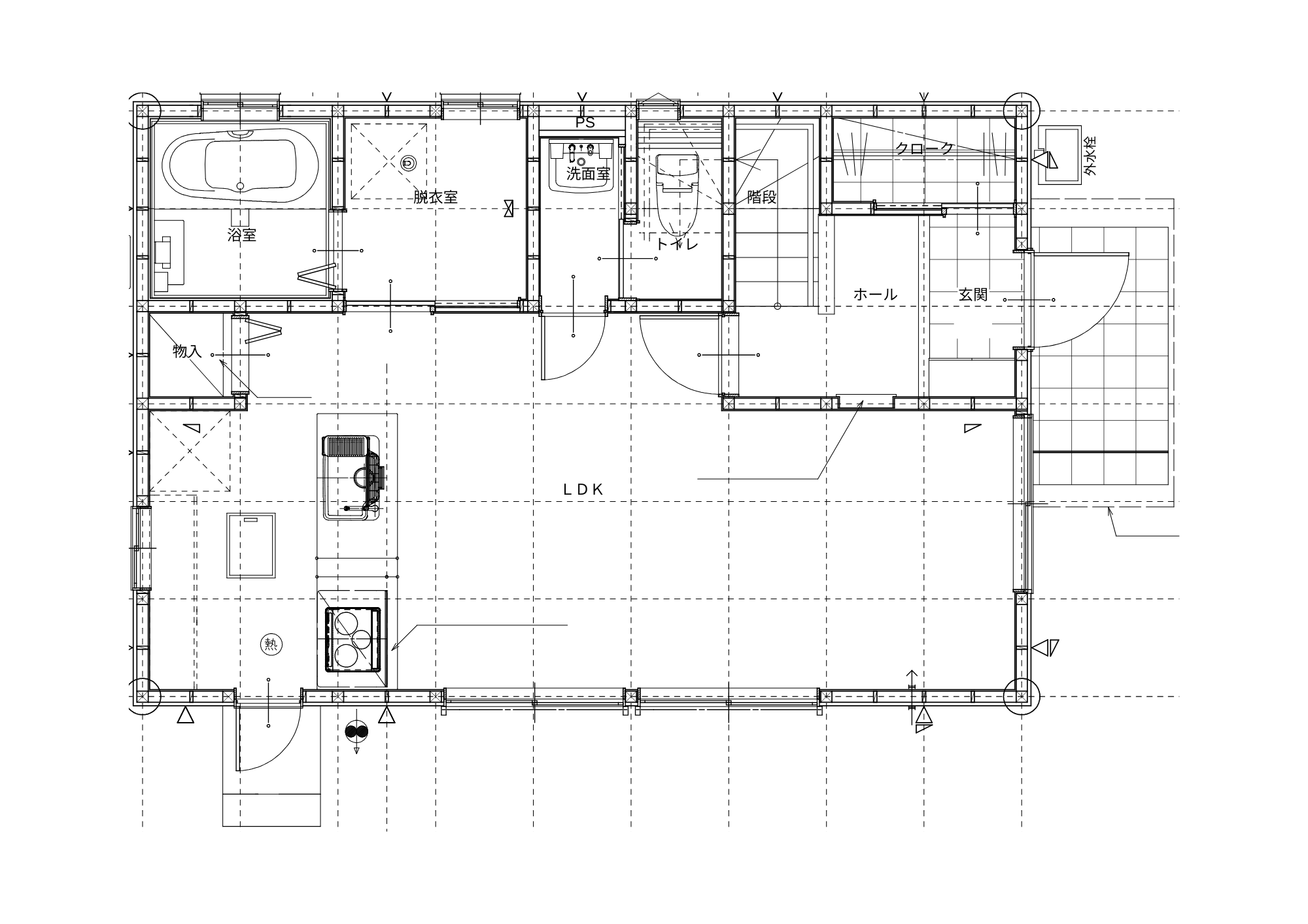
1階 |
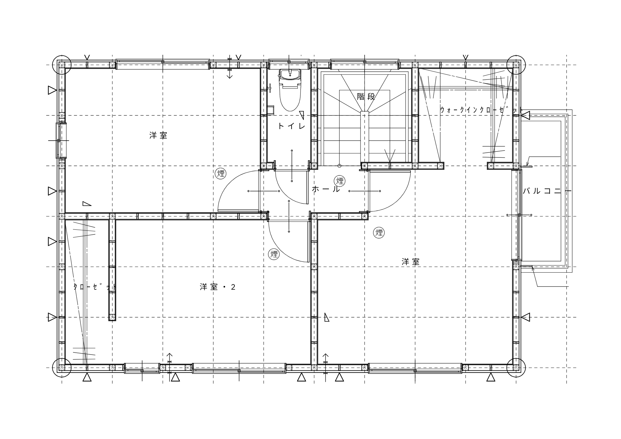
2階 |
|
プラン変更後
1階 |
2階 変更箇所 ・2階にトイレ増設 |
らら♪ハウスなら、プランを選んで、ある程度の間取り変更ができます!
★階段の位置さえ動かさなければ、間取りを自由に変更できます。
(!)こんな場合は追加料金が発生します。
・室内ドアを追加したり、収納を増やしたりした場合、設計変更料はかかりませんが、オプション費用がかかります。
・外観の形状を変えて面積を減らした場合、設計変更料がかかります。そこから減少分を差し引きます。
設計変更料金がどのような場合にかかるか詳しく知りたい方はこちらへ
▼その他の施工事例写真はこちら
|
|
|
![]() |
|
|
|
|
|
|
|
|
|
|
|
|
|
|
|
|
|
|
|
|
|
|
|
|
|
|
|
|
|
|
|
|
|
|
|
|






































