匝瑳市 H様邸
~地域に寄り添う、小さなプライベートサロンのある家~
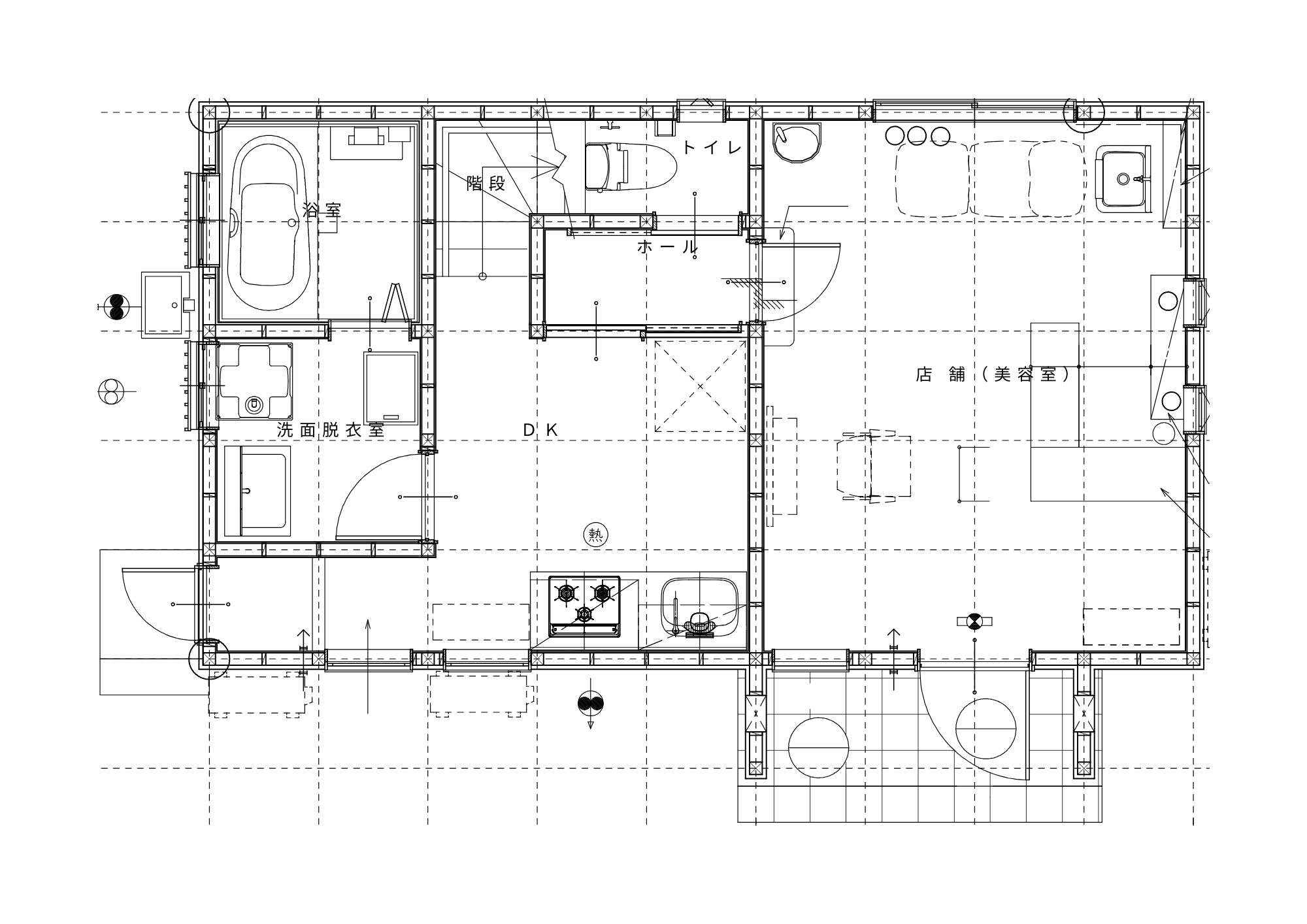
当社が建築したこちらの住まいは、美容室を併設したご夫婦の住まいです。
落ち着いたグレーの外観が印象的で、通りを歩く人にもやさしく馴染みます。
店舗部分は明るく開放的に、住居部分は木のぬくもりを感じる穏やかな空間に。
「お客様を笑顔にする時間」と「家族と過ごす時間」──
そのどちらも大切にできる、心豊かな併用住宅です。
|
黒と白のコントラストが映える、モダンでスタイリッシュな住まい ※外構はAIで作成されたイメージです。 |
木の温もりと明るさに包まれた、心までリフレッシュできるプライベートサロン ※インテリアはAIで作成されたイメージです。 |
|
木目の美しさが映える、落ち着きと温かみを感じるリビングキッチン ※インテリアはAIで作成されたイメージです。 |
窓からの光が心地よく、落ち着いた木目の床の部屋 ※インテリアはAIで作成されたイメージです。 |
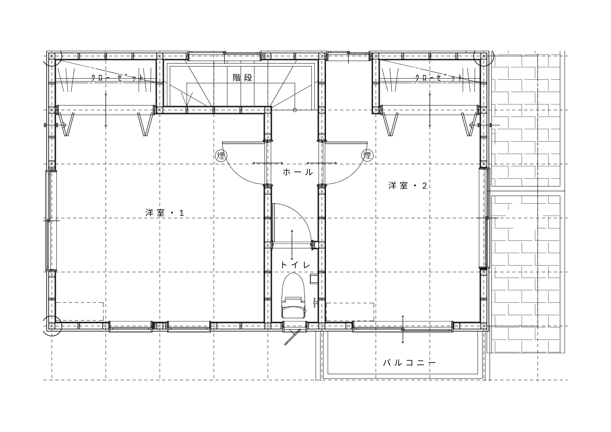
間取り紹介
|
1階
|
2階
|
らら♪ハウスなら、プランを選んで、ある程度の間取り変更ができます!
★階段の位置さえ動かさなければ、間取りを自由に変更できます。
(!)こんな場合は追加料金が発生します。
・室内ドアを追加したり、収納を増やしたりした場合、設計変更料はかかりませんが、オプション費用がかかります。
・外観の形状を変えて面積を減らした場合、設計変更料がかかります。そこから減少分を差し引きます。
設計変更料金がどのような場合にかかるか詳しく知りたい方はこちらへ
▼その他の施工事例写真はこちら
|
|
|
![]() |
![]() |
|
|
|
|
|
|
![]() |
|
|
|
|
|
|
|
|
|
|
|
|
|
|
|
|
|
|






























