多古町 T様邸
~黒の外壁が映える、家族時間を楽しむ平屋~
当社が建築したこちらの住まいは、黒の外壁が印象的な落ち着きある平屋です。
ご夫婦と子どもたちが暮らすこの家は、大きな窓から光が差し込むリビングで家族が自然と集まります。
休日には庭でバーベキューをしたり、室内で映画を楽しんだりと、趣味と団らんを両立できる住まいに。
ネイビーのキッチンや畳の部屋など、シンプルな中にも心地よい個性が感じられる空間です。
日常の何気ない時間に、家族の笑顔が広がる家となりました。
|
落ち着いたブルーの外観が美しい、平屋のモダンな住まい。大きな窓から差し込む光が、心地よい暮らしを演出します。 ※外構はAIで作成されたイメージです。 |
明るい光が差し込む玄関ホール。すっきりとした収納で、いつでも心地よく迎え入れます。 |
|
大きな窓から光が差し込む、開放感あふれるリビング。家族が自然と集まる心地よい空間です。 ※インテリアはAIで作成されたイメージです。 |
やわらかな光に包まれるベッドルーム。落ち着いたカラーで心からくつろげる空間です。 ※インテリアはAIで作成されたイメージです。 |
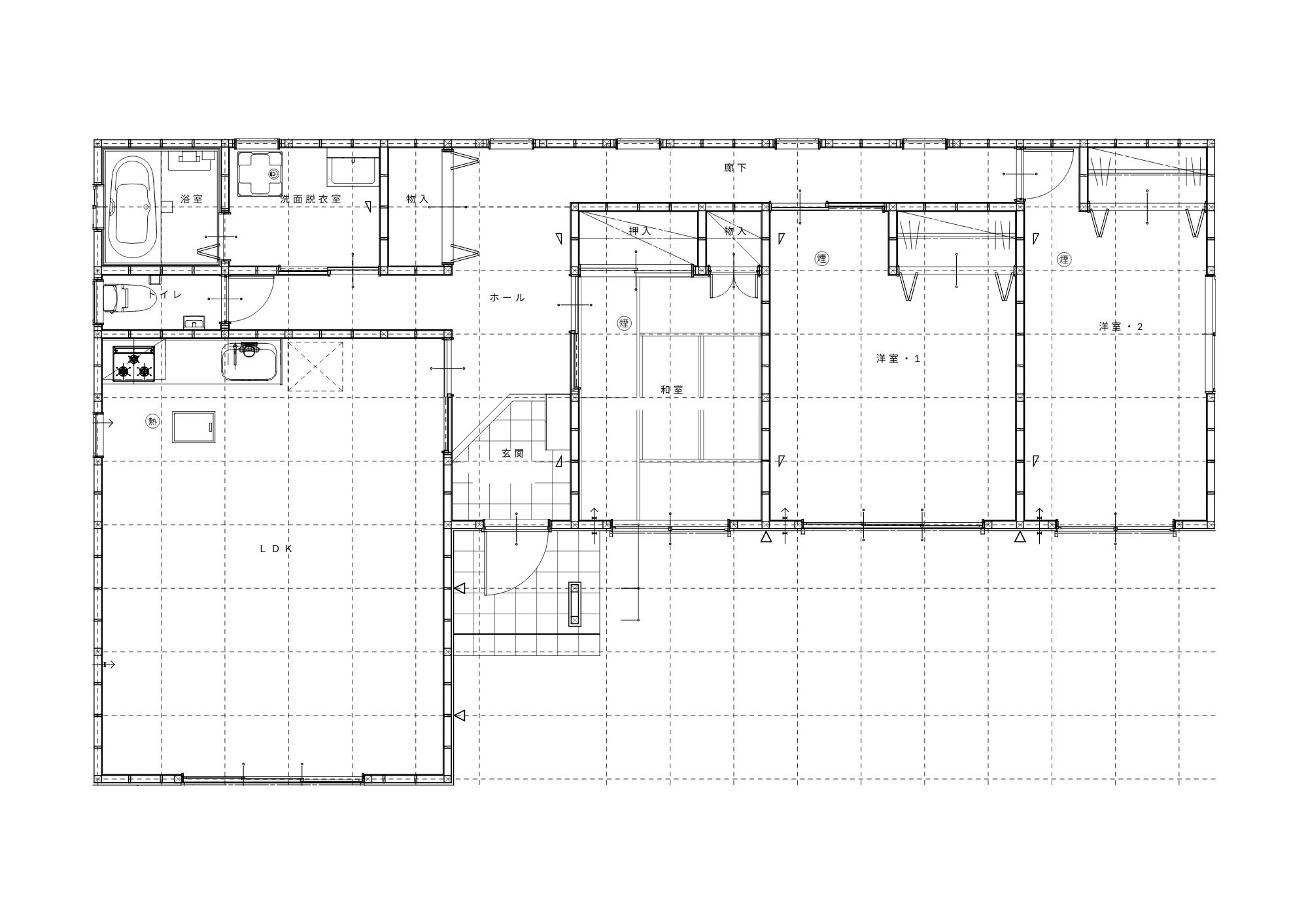
間取り紹介

らら♪ハウスなら、プランを選んで、ある程度の間取り変更ができます!
★階段の位置さえ動かさなければ、間取りを自由に変更できます。
(!)こんな場合は追加料金が発生します。
・室内ドアを追加したり、収納を増やしたりした場合、設計変更料はかかりませんが、オプション費用がかかります。
・外観の形状を変えて面積を減らした場合、設計変更料がかかります。そこから減少分を差し引きます。
設計変更料金がどのような場合にかかるか詳しく知りたい方はこちらへ
▼その他の施工事例写真はこちら
|
|
|
![]() |
|
|
|
|
|
|
![]() |
![]() |
![]() |
![]() |
|
|
|
|
|
|
|
|
|





















