No.53 家事ラク動線と収納充実!ゆとりの暮らしを叶える4LDKプラン
2階建て 4LDK 44.46坪


間取り紹介
|
1階
|
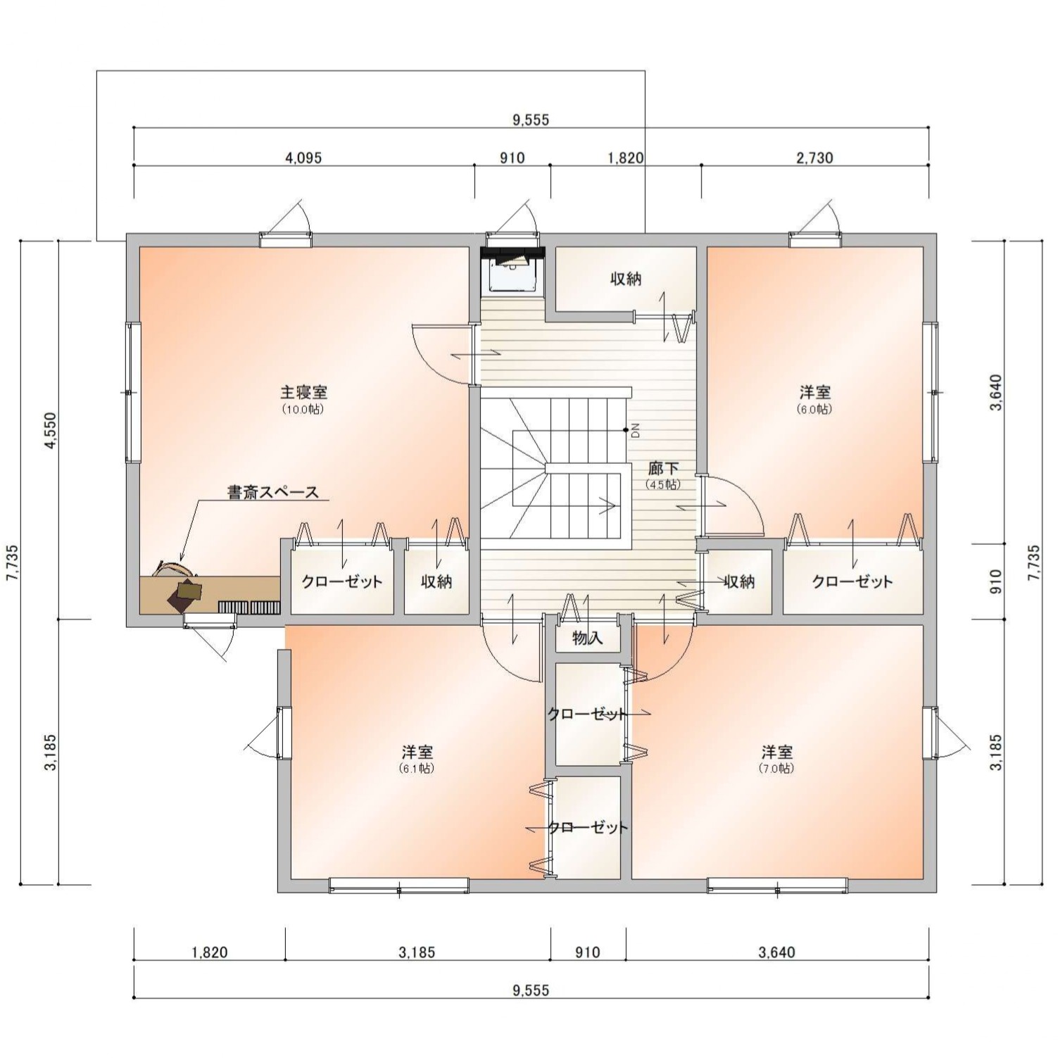
2階
|
★このプランのポイント
・家事動線がとにかくスムーズ!
キッチンから洗面・ランドリールーム・ファミリークロークへ一直線の動線で、洗濯や片付けがラクラク。忙しい共働き家庭にぴったりです。
・収納たっぷりでいつでもスッキリ♪
玄関のシューズクロークやパントリー、2階の豊富なクローゼットに加え、ファミリークロークも完備。モノが多い家庭でも安心の収納力。
・主寝室には書斎スペース付き!
在宅ワークや趣味の時間にも使えるプライベート空間。生活と仕事を上手に切り替えられる間取りです。
参考価格
◆ 建物本体価格 約21,583,430円(税込)
◆ 標準付帯工事価格 約4,378,000円(税込)
+土地代金
※上記は、参考価格になります。その他付帯工事の料金は含まれていません。
また、プラン内容には標準仕様だけでなくオプションが含まれている場合があります。
-上記の価格に含まれていないものはこちら―
カーテン&カーテンレール・浄化槽設置工事・駐車場工事・犬走り・補助金申請代行料・土地の仲介手数料・エアコンとエアコンの用の穴あけ・井戸掘り・フェンス工事・ポスト・都市ガスまたはガス会社を指定する場合・農地申請や開発許可等の各種申請費用・アンテナ工事・オール電化仕様に変更・室内の照明器具・フラット35申請や検査等一式費用・登記費用・測量費用・本下水への接続費用・上水道取り出し・地盤改良工事・間取り変更・住宅ローン手数料 等
この商品プランについて知りたい方はこちらへ


