芝山町 K様邸
~やさしい時間が流れる、子供の成長を見守る家~
当社が建築したこちらの住まいは、シックな外壁と、明るく開放的な室内が印象的な二階建てです。
ご夫婦と二人のお子さまが暮らしており、日中は大きな窓から光が差し込み、リビングいっぱいにあたたかな空気が広がります。
リビング横の和室では、子どもたちが遊んだり、お昼寝をしたり。
夜は家族そろって食卓を囲み、一日の出来事を話す穏やかな時間を過ごしています。
洗練されたデザインの中に、やさしい日常が息づく住まいです。
|
深みのある外壁カラーが、スタイリッシュで重厚感のある佇まいを演出する住まい ※外構はAIで作成されたイメージです。 |
白を基調とした明るい玄関が、清潔感と開放感を感じさせます |
|
白を基調にした明るい空間に、淡いグリーンのアクセントが心地よさを添えるリビング |
窓からの光をたっぷり取り込み、真っ白な床と壁がより一層広さを感じさせる明るいお部屋 |
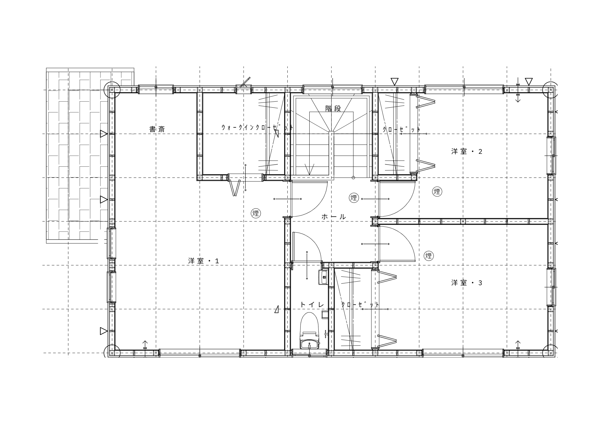
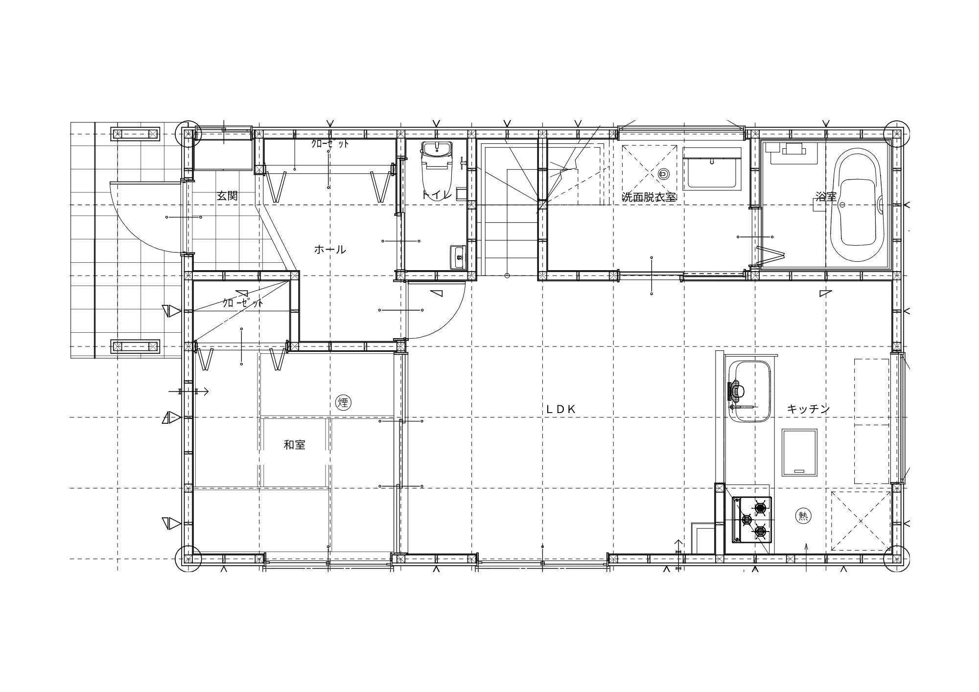
間取り紹介
|
1階
|
2階
|
らら♪ハウスなら、プランを選んで、ある程度の間取り変更ができます!
★階段の位置さえ動かさなければ、間取りを自由に変更できます。
(!)こんな場合は追加料金が発生します。
・室内ドアを追加したり、収納を増やしたりした場合、設計変更料はかかりませんが、オプション費用がかかります。
・外観の形状を変えて面積を減らした場合、設計変更料がかかります。そこから減少分を差し引きます。
設計変更料金がどのような場合にかかるか詳しく知りたい方はこちらへ
▼その他の施工事例写真はこちら
|
|
|
![]() |
|
|
|
|
|
|
|
|
|
|
|
|
|
|
|
|
|
|
|
|
|
|
|
|
|
|
|
|
|
|
|
|
![]() |
|
|
|
|
|
|
|
|
|
|






































