No.50 22帖の大空間LDKが主役!家族がのびのび暮らせる住まい
2階建て 5LDK 39.32坪


間取り紹介
|
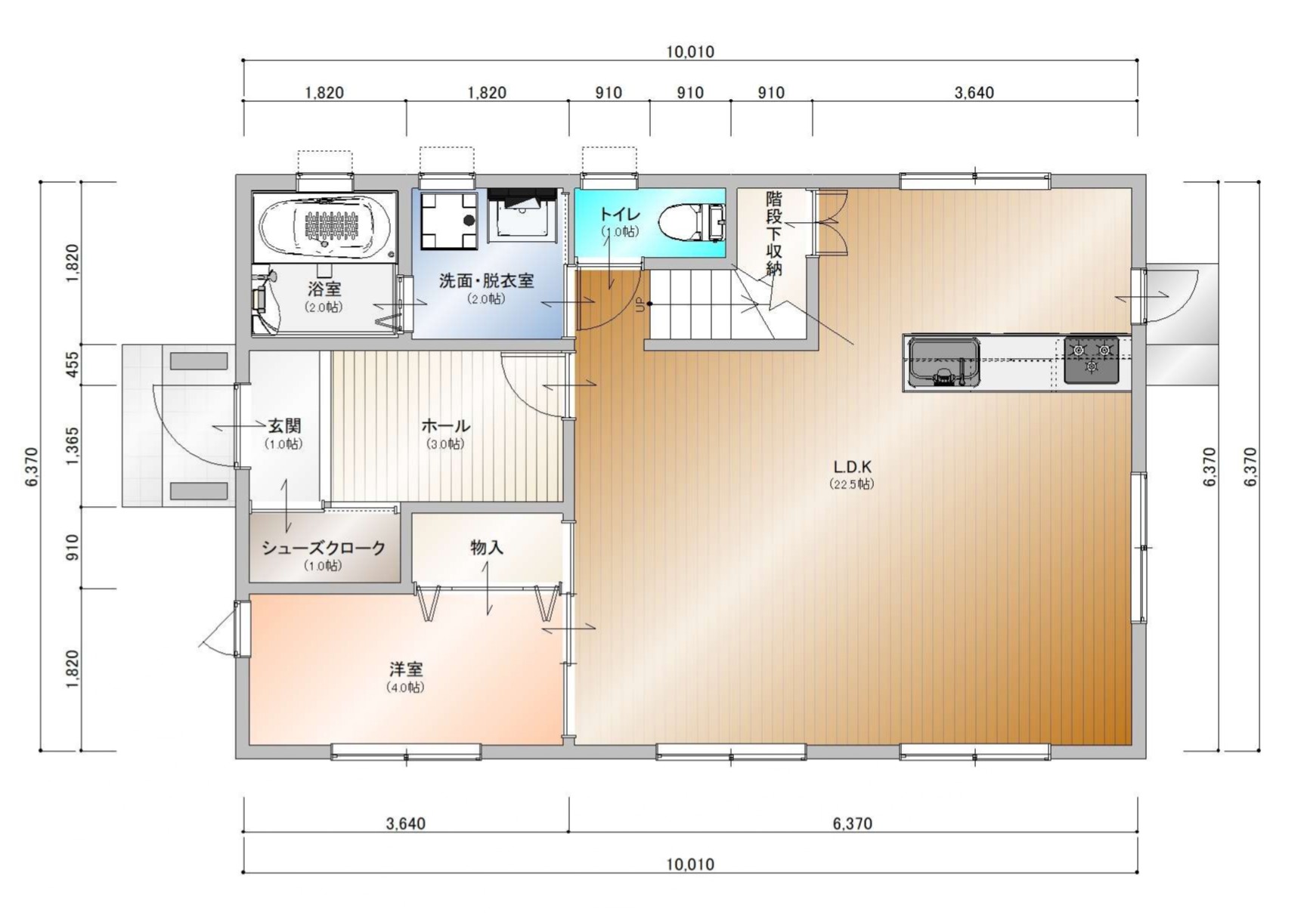
1階
|
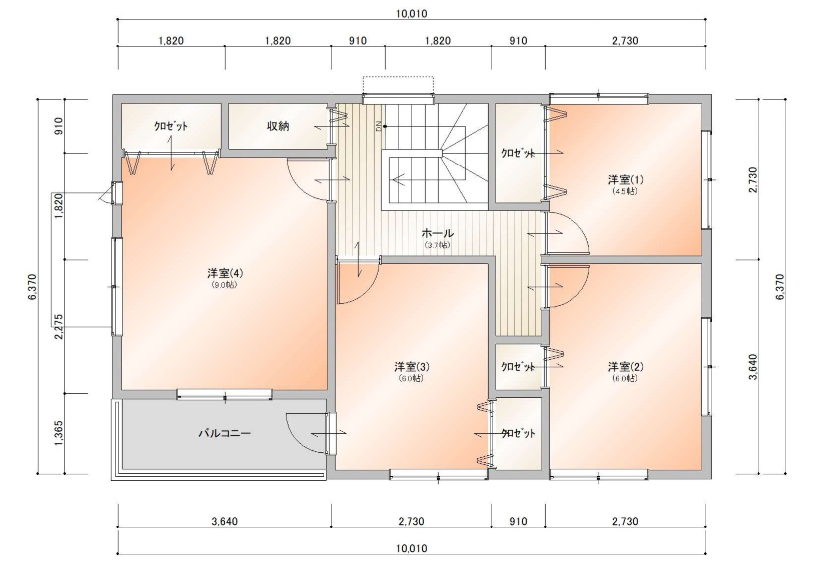
2階
|
★このプランのポイント
・開放感あふれる22帖の広々LDK
家族が自然と集まる明るくゆとりあるリビング。大きな窓からの採光で、開放的な空間を実現しています。
・使い勝手抜群の1階洋室
客間や書斎、テレワークスペースとしても活躍。ライフスタイルに合わせて多目的に使える便利な一室です。
・家事ラク動線&豊富な収納
キッチンから洗面・浴室へとスムーズにつながる動線設計。シューズクロークや階段下収納など、片付け上手になれる工夫も満載です。
参考価格
◆ 建物本体価格 約19,167,215円(税込)
◆ 標準付帯工事価格 約4,378,000円(税込)
+土地代金
※上記は、参考価格になります。その他付帯工事の料金は含まれていません。
また、プラン内容には標準仕様だけでなくオプションが含まれている場合があります。
-上記の価格に含まれていないものはこちら―
カーテン&カーテンレール・浄化槽設置工事・駐車場工事・犬走り・補助金申請代行料・土地の仲介手数料・エアコンとエアコンの用の穴あけ・井戸掘り・フェンス工事・ポスト・都市ガスまたはガス会社を指定する場合・農地申請や開発許可等の各種申請費用・アンテナ工事・オール電化仕様に変更・室内の照明器具・フラット35申請や検査等一式費用・登記費用・測量費用・本下水への接続費用・上水道取り出し・地盤改良工事・間取り変更・住宅ローン手数料 等
この商品プランについて知りたい方はこちらへ


