多古町 N様邸
~やさしく寄り添う、世代をつなぐ家~
当社が建築したこちらの住まいは、ベージュとレンガ調の外壁が優しい印象を与える、穏やかな雰囲気の二世帯住宅です。
親世帯と子世帯がそれぞれの生活リズムを保ちながら、自然と顔を合わせられるような間取りが特徴。
1階ではお母さまが趣味の家庭菜園で育てた野菜を料理し、2階ではご夫婦が休日にパンを焼いたり、映画を観ながらのんびり過ごしたり。
夕方になると、リビングに集まり一緒に食卓を囲む時間が、家族の楽しみになっています。
優しさと温もりに包まれた、笑顔あふれるお家です。
|
陽光に映える、レンガ調デザインが美しい住まい。 ※外構はAIで作成されたイメージです。 |
ナチュラルな木目が、帰宅するたびに安らぎをくれる玄関。 ※インテリアはAIで作成されたイメージです。 |
|
家族の時間をより豊かにする、明るく広々としたリビング。 ※インテリアはAIで作成されたイメージです。 |
明るさと収納力を兼ね備えた、快適なベッドルーム。 ※インテリアはAIで作成されたイメージです。 |
|
毎日の身支度が快適になる、ゆとりあるウォークインクローゼット。 ※インテリアはAIで作成されたイメージです。 |
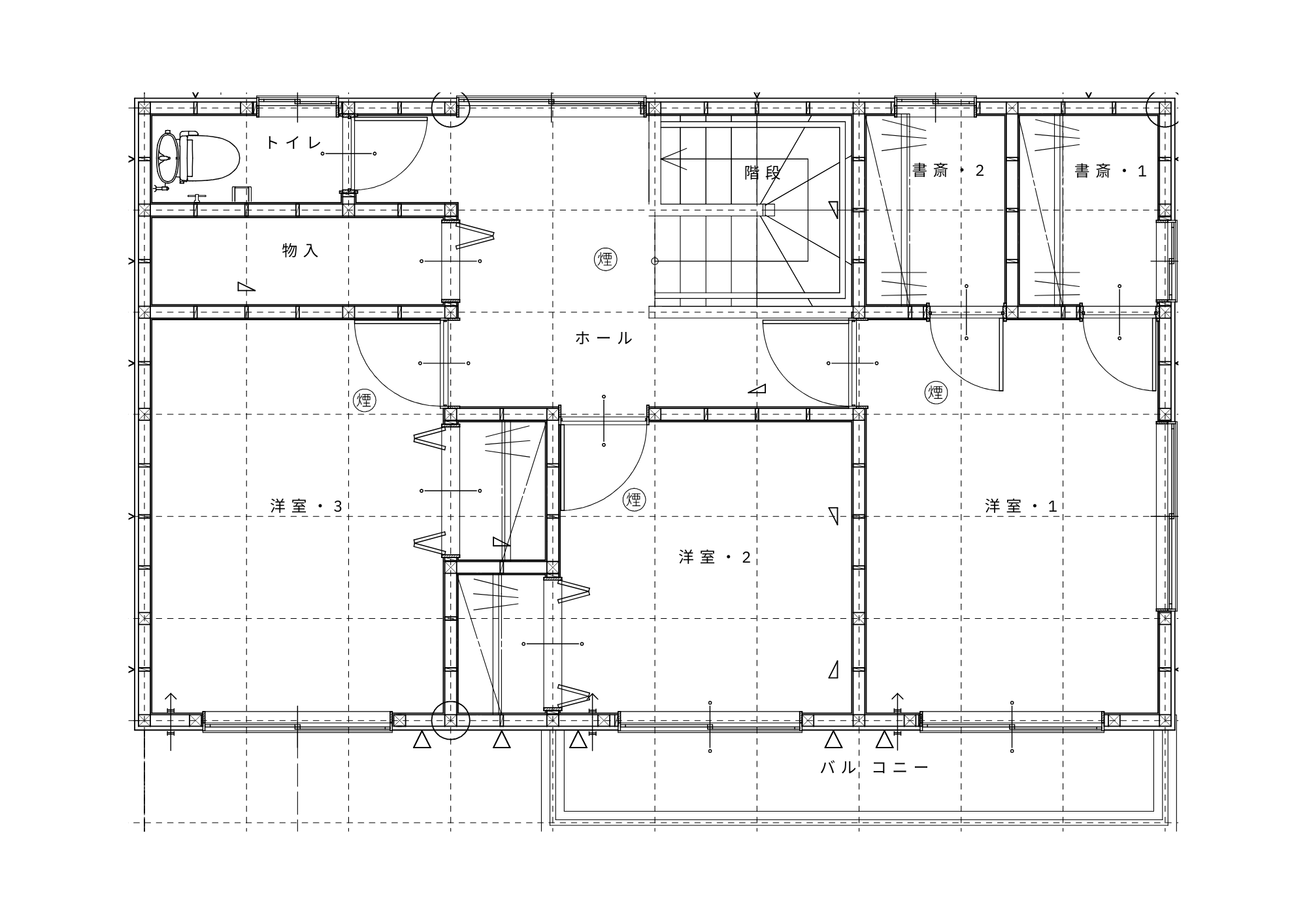
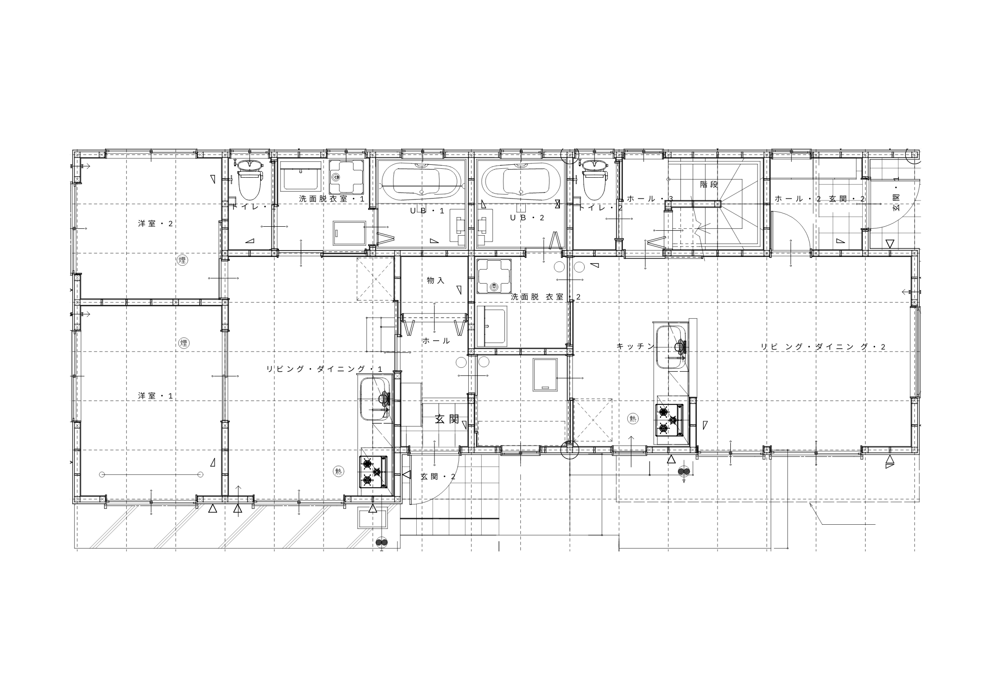
間取り紹介
|
1階
|
2階
|
らら♪ハウスなら、プランを選んで、ある程度の間取り変更ができます!
★階段の位置さえ動かさなければ、間取りを自由に変更できます。
(!)こんな場合は追加料金が発生します。
・室内ドアを追加したり、収納を増やしたりした場合、設計変更料はかかりませんが、オプション費用がかかります。
・外観の形状を変えて面積を減らした場合、設計変更料がかかります。そこから減少分を差し引きます。
設計変更料金がどのような場合にかかるか詳しく知りたい方はこちらへ
▼その他の施工事例写真はこちら
|
|
|
![]() |
|
|
|
|
|
|
|
|
|
|
|
|
|
|
|
|
|
|
|
|
|
|
|
|
|
|
|
![]() |
![]() |
![]() |
|
|
|
|
|
|
|
|
|
|
|
|
|
|
|
|
|
|
|
|
|
|
|
|
|
|
|
|
|
|
|
|
|
|
|
|
|
|
|
|































































