大正ロマン風リノベ
~時を味わう懐かしさに包まれる住まい~
大正ロマンの雰囲気をまとった、どこか懐かしく温かな住まいです。
アーチ窓や深い色合いの建具が、日常の風景に小さなときめきを添えてくれます。
光が差し込むキッチンは、料理の時間が楽しみに変わる心地よい空間へ。
和モダンに整えた室内は、落ち着きながらも個性が感じられ、ゆったりとした時間が流れます。
便利さだけではなく、暮らしの“質”を大切にしたい方にぴったりの内装です。
ここで、新しい日々を丁寧に紡いでみませんか。
|
やさしいアーチ窓が似合う大正レトロの家 ※外構はAIで作成されたイメージです。 |
レトロ感満載のブルーが彩る玄関ホール
|
|
木の温もり広がる癒しのリビング |
上品な和モダンが落ち着く居室 |
|
レトロな床材が可愛い洗面室 |
光あふれる開放的なフリースペース |
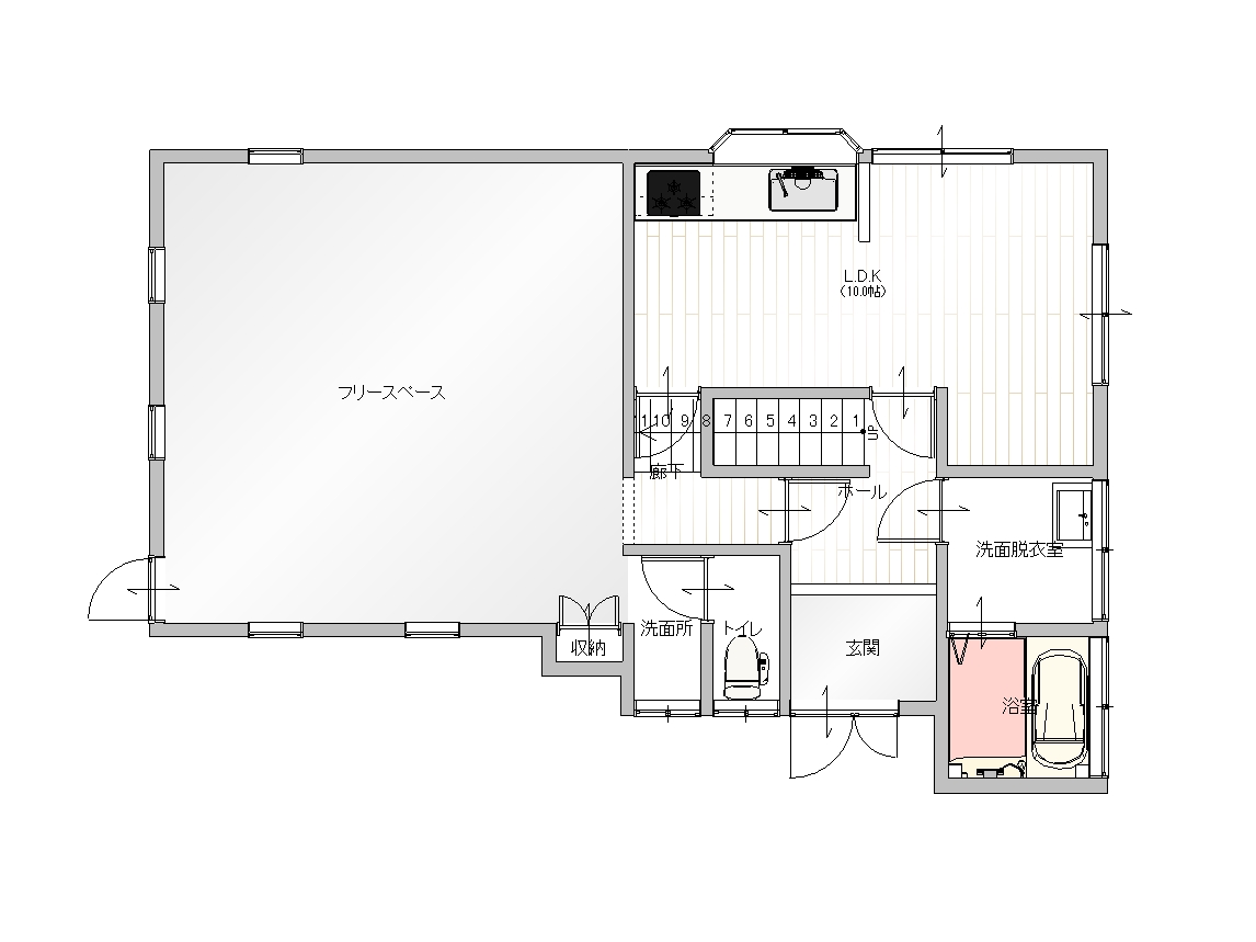
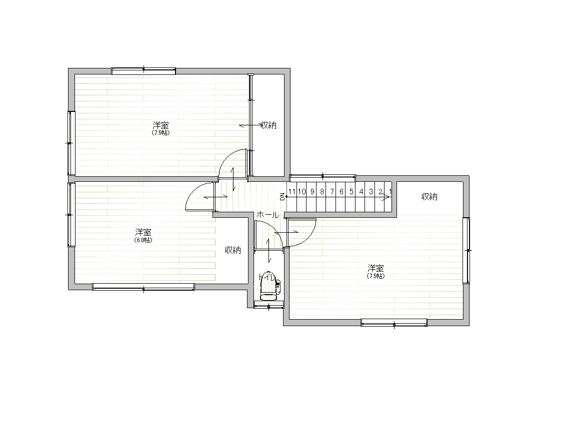
間取り紹介
|
1階 |
2階 |
▼その他の施工事例写真はこちら
|
|
|
![]() |
|
|
|
|
|
|
|
![]() |
|
|
|
|
|
|
|
|
|
|
|
|
|
|
|
|
|
|
|
|
|
|
|
|
|
|
|
|
|
|
|
|
|
|
|
|







































