旭市 Y様邸
~家族の時間を重ねていく、あたたかな暮らし~
当社が建築したこちらの住まいは、ネイビー×木目のコントラストが美しい、シンプルモダンな外観。
ご夫婦と中学生の息子さんが暮らしています。
キッチンを中心に、リビング・洗面・収納へとつながる動線は、忙しい朝もスムーズ。
休日はゆっくりコーヒーを飲みながら家族で映画を楽しむ時間が定番です。
落ち着いた色合いと機能的な間取りが、家族の毎日を穏やかに支えます。
|
スタイリッシュな黒い外壁が印象的な住まい。落ち着きと高級感を兼ね備えています。 ※外構はAIで作成されたイメージです。 |
シューズクローク付きで、すっきりと片付く機能的な玄関 |
|
高窓からの光がやさしく広がる、明るいリビング |
落ち着いた色合いと高窓からの光が、上質な雰囲気を演出する部屋 |
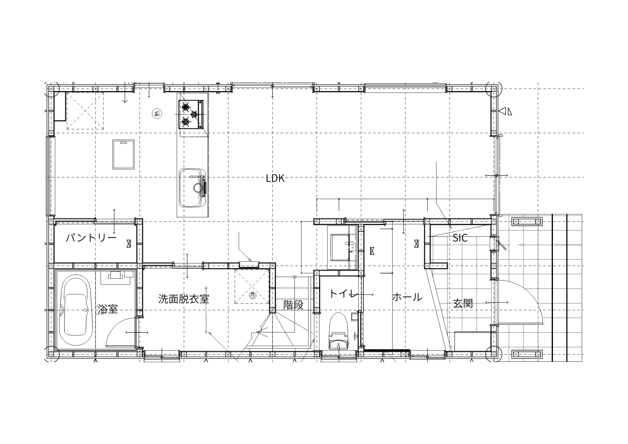
間取り紹介
|
1階
|
2階
|
らら♪ハウスなら、プランを選んで、ある程度の間取り変更ができます!
★階段の位置さえ動かさなければ、間取りを自由に変更できます。
(!)こんな場合は追加料金が発生します。
・室内ドアを追加したり、収納を増やしたりした場合、設計変更料はかかりませんが、オプション費用がかかります。
・外観の形状を変えて面積を減らした場合、設計変更料がかかります。そこから減少分を差し引きます。
設計変更料金がどのような場合にかかるか詳しく知りたい方はこちらへ
▼その他の施工事例写真はこちら
|
|
|
![]() |
|
|
|
|
|
|
|
|
![]() |
![]() |
|
|
|
|
|
![]() |
|
|
|
|
|
|
![]() |
|
|
|
|
|
|
![]() |
![]() |
![]() |
|
|
|
|


































