No.40 広々リビングと書斎付きで暮らしを豊かにする家
2階建て 3LDK 33.56坪


間取り紹介
|
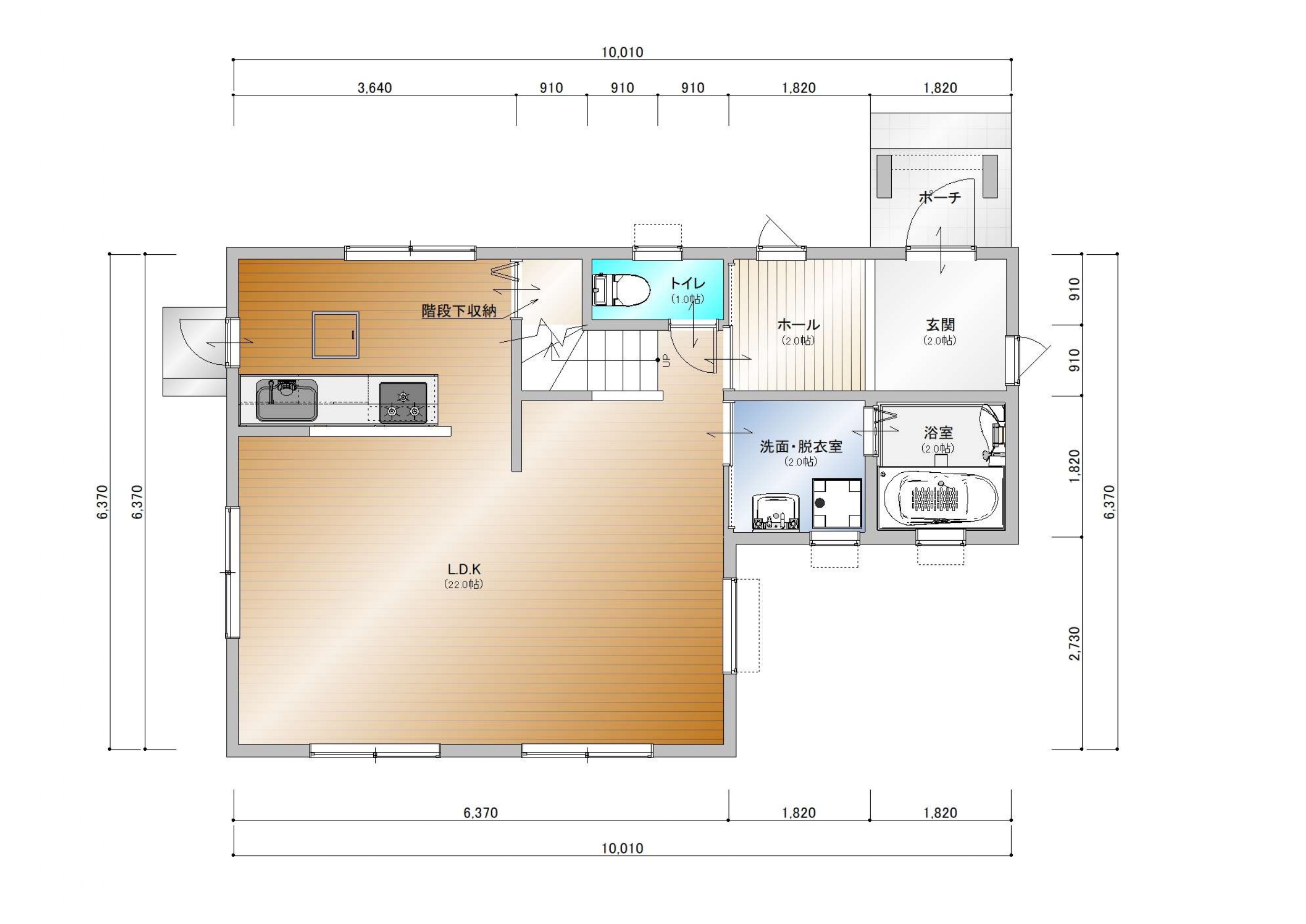
1階
|
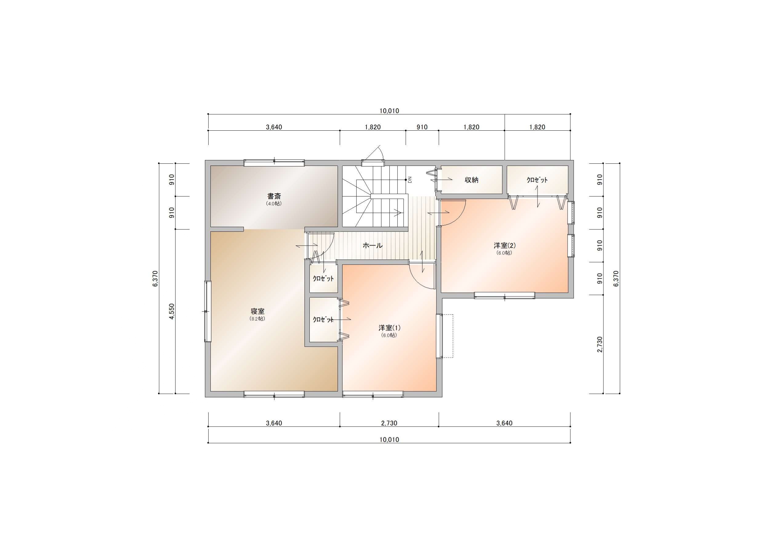
2階
|
★このプランのポイント
・開放感あふれる22帖の広々LDK
大きな窓から光が差し込むリビングは、家族が自然と集まる心地よい空間。
・書斎付きで在宅ワークや趣味スペースにも最適
2階に4帖の書斎を設け、集中できるプライベートな時間を確保。
・生活動線と収納を両立した使いやすい設計
玄関→洗面→浴室のスムーズな動線に加え、各所に収納を配置して家中スッキリ。
参考価格
◆ 建物本体価格 約16,529,916円(税込)
◆ 標準付帯工事価格 約4,378,000円(税込)
+土地代金
※上記は、参考価格になります。その他付帯工事の料金は含まれていません。
また、プラン内容には標準仕様だけでなくオプションが含まれている場合があります。
-上記の価格に含まれていないものはこちら―
カーテン&カーテンレール・浄化槽設置工事・駐車場工事・犬走り・補助金申請代行料・土地の仲介手数料・エアコンとエアコンの用の穴あけ・井戸掘り・フェンス工事・ポスト・都市ガスまたはガス会社を指定する場合・農地申請や開発許可等の各種申請費用・アンテナ工事・オール電化仕様に変更・室内の照明器具・フラット35申請や検査等一式費用・登記費用・測量費用・本下水への接続費用・上水道取り出し・地盤改良工事・間取り変更・住宅ローン手数料 等
この商品プランについて知りたい方はこちらへ


