No.47 たっぷり収納と快適動線で暮らしやすさを追求した家
2階建て 4LDK~5LDK 35.53坪


間取り紹介
|
1階
|
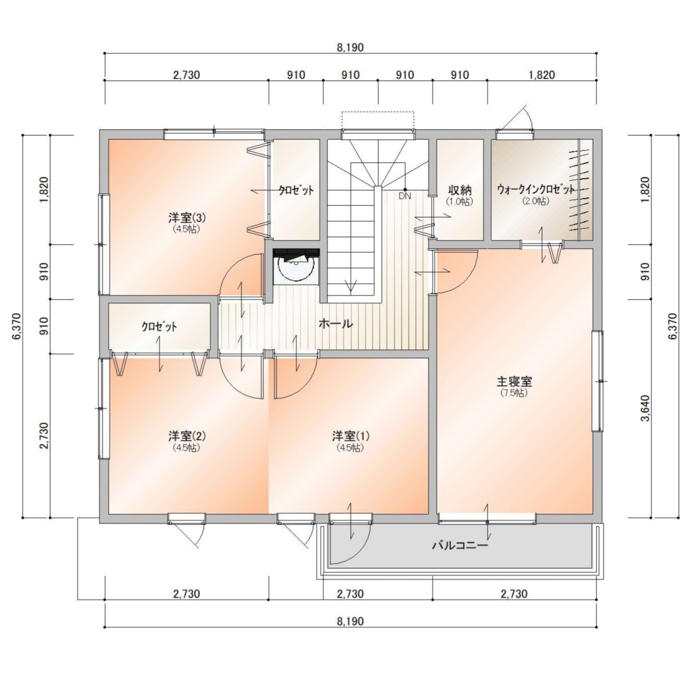
2階
|
★このプランのポイント
・効率的な家事動線で時短が叶うスマート設計
キッチン・洗面・浴室が一直線につながる動線で、料理や洗濯などの家事をスムーズにこなせます。
・在宅ワークにも対応できる柔軟な間取り
1階洋室はワークスペースや客間として活用でき、2階洋室を間仕切ることで最大5LDKにも変更可能。ライフスタイルの変化にも柔軟に対応します。
・充実した収納でスッキリ片付く暮らし
主寝室のウォークインクローゼットをはじめ、各部屋に収納を完備。仕事用資料や家族の持ち物もきれいに整理できます。
参考価格
◆ 建物本体価格 約17,389,055円(税込)
◆ 標準付帯工事価格 約4,378,000円(税込)
+土地代金
※上記は、参考価格になります。その他付帯工事の料金は含まれていません。
また、プラン内容には標準仕様だけでなくオプションが含まれている場合があります。
-上記の価格に含まれていないものはこちら―
カーテン&カーテンレール・浄化槽設置工事・駐車場工事・犬走り・補助金申請代行料・土地の仲介手数料・エアコンとエアコンの用の穴あけ・井戸掘り・フェンス工事・ポスト・都市ガスまたはガス会社を指定する場合・農地申請や開発許可等の各種申請費用・アンテナ工事・オール電化仕様に変更・室内の照明器具・フラット35申請や検査等一式費用・登記費用・測量費用・本下水への接続費用・上水道取り出し・地盤改良工事・間取り変更・住宅ローン手数料 等
この商品プランについて知りたい方はこちらへ


