匝瑳市 K様邸
~光に包まれた、やさしい家~
外観はベージュとブラウンのツートーン。落ち着きの中にも温かみを感じるデザインです。
共働きのご夫婦と小学生の男の子が暮らすお家で、休日は庭でキャッチボールをしたり、近くの公園まで自転車で出かけたり。
奥さまは観葉植物を育てるのが趣味で、リビングの窓辺にはグリーンが並びます。
ご主人はDIYが好きで、週末にはウッドデッキづくりや棚の取付けなど、少しずつ家を“自分たちらしく”育てています。
シンプルだからこそ、暮らし方で個性が光る。そんな心地よい住まいです。
|
ツートンカラーが映える、明るく爽やかな外観デザイン。 ※外構はAIで作成されたイメージです。 |
毎日の暮らしに心地よさを添える、ナチュラルな玄関。 ※インテリアはAIで作成されたイメージです。 |
|
自然光と木の温もりが調和する、やさしいリビング空間。 ※インテリアはAIで作成されたイメージです。 |
明るい光とナチュラルな素材感が、やさしく調和する寝室。 ※インテリアはAIで作成されたイメージです。 |
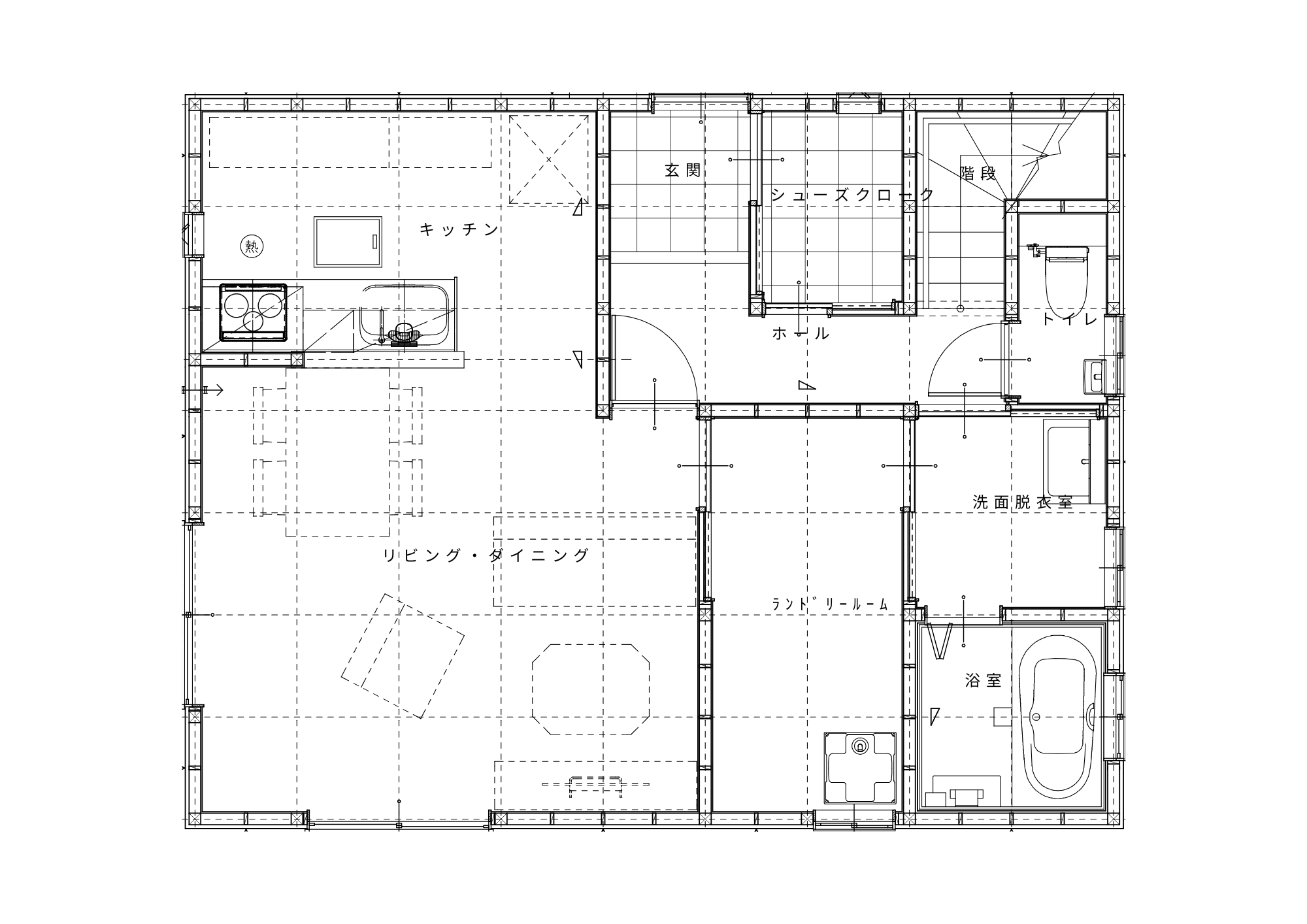
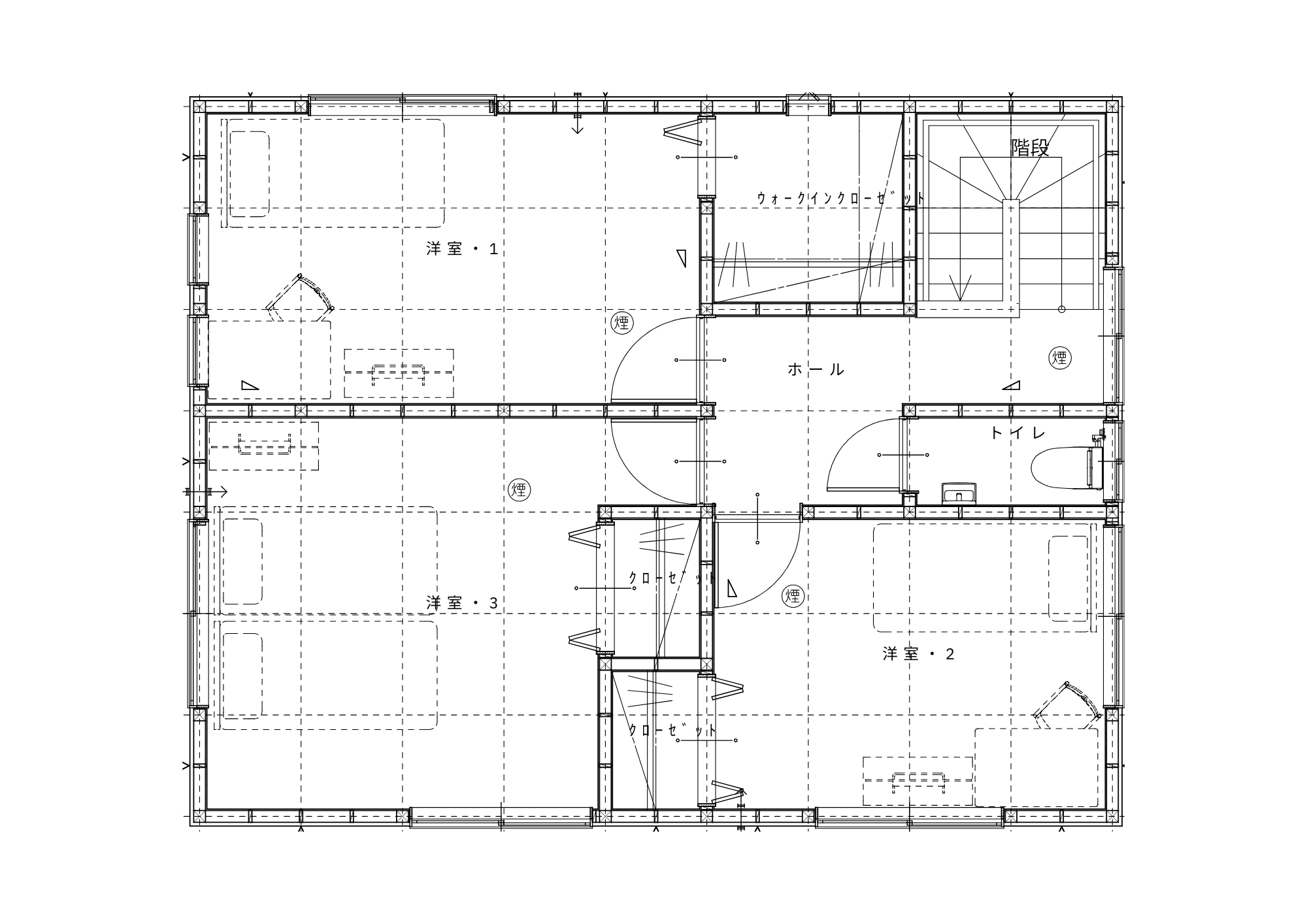
間取り紹介
|
1階
|
2階
|
らら♪ハウスなら、プランを選んで、ある程度の間取り変更ができます!
★階段の位置さえ動かさなければ、間取りを自由に変更できます。
(!)こんな場合は追加料金が発生します。
・室内ドアを追加したり、収納を増やしたりした場合、設計変更料はかかりませんが、オプション費用がかかります。
・外観の形状を変えて面積を減らした場合、設計変更料がかかります。そこから減少分を差し引きます。
設計変更料金がどのような場合にかかるか詳しく知りたい方はこちらへ
▼その他の施工事例写真はこちら
|
|
|
![]() |
|
|
|
|
|
|
|
|
|
|
|
|
|
|
|
|
|
|
|
|
|
|
|
|
|
|
|
![]() |
![]() |
![]() |
|
|
|
|
|
|
|
|
|





































