No.36 家事も暮らしもスムーズに。動線美が光る2階建ての家
2階建て 3LDK 32.81坪


間取り紹介
|
1階
|
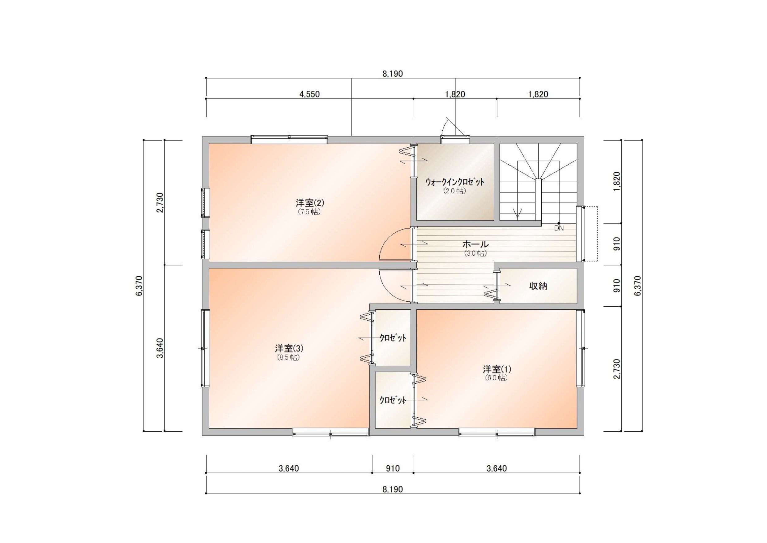
2階
|
★このプランのポイント
・家事ラクを実現する一直線の水まわり動線
洗面・脱衣室からランドリールーム、浴室までが一直線でつながり、毎日の家事がスムーズ。
・家族が自然と集まる広々16帖のLDK
キッチンからリビング全体を見渡せる配置で、家族とのコミュニケーションが取りやすい。
・2階にはゆとりの収納スペースを確保
ウォークインクローゼットや個室の収納が充実し、すっきり片付く暮らしをサポート。
参考価格
◆ 建物本体価格 約16,213,330円(税込)
◆ 標準付帯工事価格 約4,378,000円(税込)
+土地代金
※上記は、参考価格になります。その他付帯工事の料金は含まれていません。
また、プラン内容には標準仕様だけでなくオプションが含まれている場合があります。
-上記の価格に含まれていないものはこちら―
カーテン&カーテンレール・浄化槽設置工事・駐車場工事・犬走り・補助金申請代行料・土地の仲介手数料・エアコンとエアコンの用の穴あけ・井戸掘り・フェンス工事・ポスト・都市ガスまたはガス会社を指定する場合・農地申請や開発許可等の各種申請費用・アンテナ工事・オール電化仕様に変更・室内の照明器具・フラット35申請や検査等一式費用・登記費用・測量費用・本下水への接続費用・上水道取り出し・地盤改良工事・間取り変更・住宅ローン手数料 等
この商品プランについて知りたい方はこちらへ


