No.11 ファミリークローク付き!片付け上手になれる平屋
平屋 2LDK 19.16坪


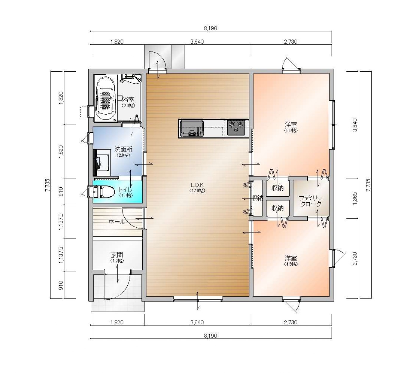
間取り紹介

★このプランのポイント
・家族が集う広々17帖LDK
開放感のあるリビングで、家族団らんの時間をゆったり過ごせます。
・大容量のファミリークローク付き
衣類や季節物をまとめて収納でき、いつでもすっきり片付く住まい。
・快適な家事動線
キッチンから洗面・浴室への動きがスムーズで、家事効率もアップ。
参考価格
◆ 建物本体価格 約11,816,371円(税込)
◆ 標準付帯工事価格 約4,378,000円(税込)
+土地代金
※上記は、参考価格になります。その他付帯工事の料金は含まれていません。
また、プラン内容には標準仕様だけでなくオプションが含まれている場合があります。
-上記の価格に含まれていないものはこちら―
カーテン&カーテンレール・浄化槽設置工事・駐車場工事・犬走り・補助金申請代行料・土地の仲介手数料・エアコンとエアコンの用の穴あけ・井戸掘り・フェンス工事・ポスト・都市ガスまたはガス会社を指定する場合・農地申請や開発許可等の各種申請費用・アンテナ工事・オール電化仕様に変更・室内の照明器具・フラット35申請や検査等一式費用・登記費用・測量費用・本下水への接続費用・上水道取り出し・地盤改良工事・間取り変更・住宅ローン手数料 等
この商品プランについて知りたい方はこちらへ
