芝山町 O様邸
~家族のつながりを育む、やさしい二階建ての家~
当社が建築したこちらの住まいは、ブラウンの外壁が落ち着きを感じさせる、シンプルで上品な2階建てです。
ご夫婦と元気な二人のお子さんが暮らしており、休日には家族そろって庭でテントを張り、プチキャンプを楽しむのが定番。
リビングの大きな窓からは一日中光が入り、明るく気持ちのいい空間が広がります。
奥さまはお菓子づくりが趣味で、焼きたての甘い香りがリビングいっぱいに広がると、子どもたちが嬉しそうに駆け寄ります。
ご主人は夜、バルコニーで星空を眺めながら一杯のコーヒーを。
そんな穏やかであたたかい時間が流れるお家です。
|
陽射しに映えるスタイリッシュなファサードデザイン。 ※外構はAIで作成されたイメージです。 |
白を基調とした明るい玄関。シンプルな美しさが毎日の暮らしを心地よく迎えます。 ※インテリアはAIで作成されたイメージです。 |
|
ホワイトを基調とした空間に、やわらかなブルーのアクセントが爽やかさをプラスしたリビング。 ※インテリアはAIで作成されたイメージです。 |
清潔感あふれる空間で、寝室にも書斎にもぴったり。 ※インテリアはAIで作成されたイメージです。 |
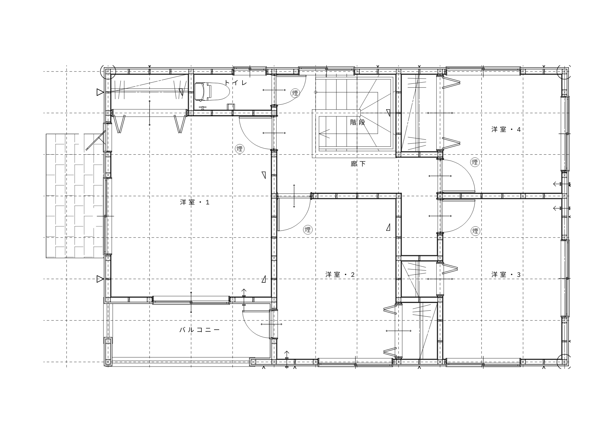
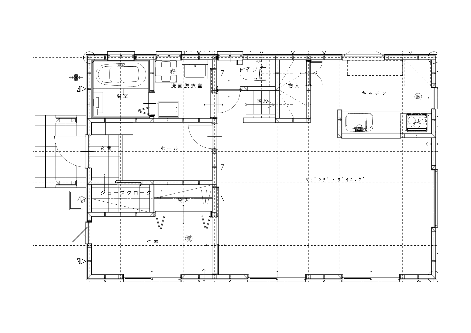
間取り紹介
|
1階
|
2階
|
らら♪ハウスなら、プランを選んで、ある程度の間取り変更ができます!
★階段の位置さえ動かさなければ、間取りを自由に変更できます。
(!)こんな場合は追加料金が発生します。
・室内ドアを追加したり、収納を増やしたりした場合、設計変更料はかかりませんが、オプション費用がかかります。
・外観の形状を変えて面積を減らした場合、設計変更料がかかります。そこから減少分を差し引きます。
設計変更料金がどのような場合にかかるか詳しく知りたい方はこちらへ
▼その他の施工事例写真はこちら
|
|
|
![]() |
|
|
|
|
|
|
|
|
|
|
|
|
|
|
|
|
|
|
|
|
|
|
|
|
|
|
|
![]() |
![]() |
![]() |
|
|
|
|
|
|
|
|
|
|
|
|
|
|
|
|
|
|
|
|
|
















































