多古町 E様邸
~暮らしに、ちょうどいい強さとやさしさを。~
落ち着いたグレーの外観が街並みに映える、シンプルモダンな二階建て住宅。
無駄を省いた美しいフォルムと、毎日の暮らしやすさを考えた間取りが魅力です。
採光や通風にも配慮し、室内は明るく快適。
家族の成長やライフスタイルの変化にも柔軟に対応でき、
長く安心して住み続けられる住まいです。日常に心地よいリズムをもたらします。
|
ブルーが映える外壁 ※外構はAIで作成されたイメージです。 |
2階へのアクセスが良い、玄関 ※インテリアはAIで作成されたイメージです。 |
|
広いリビングが、暮らしを豊かにしてくれます ※インテリアはAIで作成されたイメージです。 |
大きな窓から光が差し込む、明るく心地よい和室 ※インテリアはAIで作成されたイメージです。 |
間取り紹介
|
お客様が選んだプラン №5
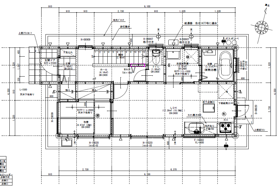
1階 |
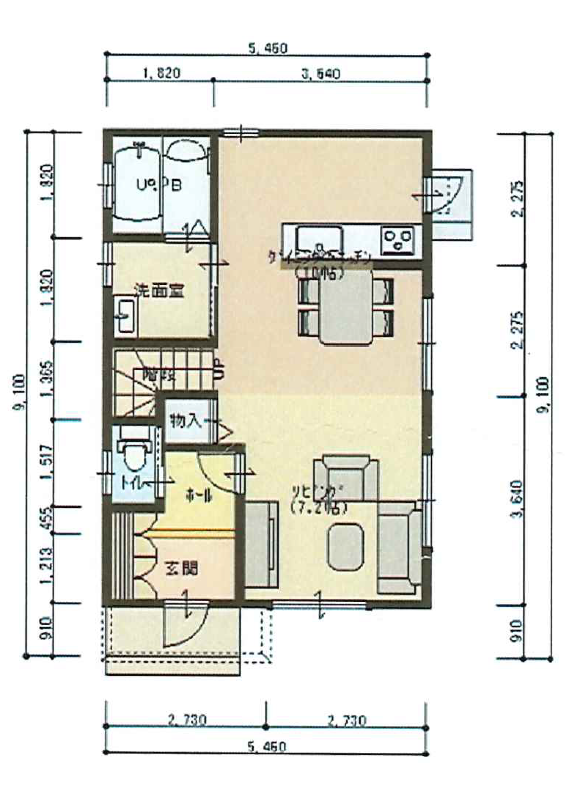
2階 |
|
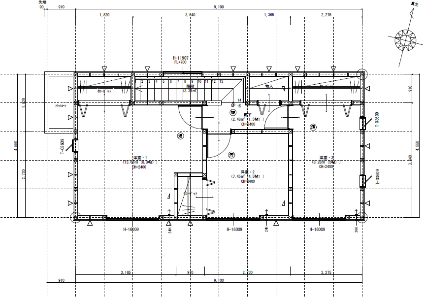
プラン変更後
1階 |
2階 変更箇所 |
らら♪ハウスなら、プランを選んで、ある程度の間取り変更ができます!
★階段の位置さえ動かさなければ、間取りを自由に変更できます。
(!)こんな場合は追加料金が発生します。
・室内ドアを追加したり、収納を増やしたりした場合、設計変更料はかかりませんが、オプション費用がかかります。
・外観の形状を変えて面積を減らした場合、設計変更料がかかります。そこから減少分を差し引きます。
設計変更料金がどのような場合にかかるか詳しく知りたい方はこちらへ
▼その他の施工事例写真はこちら
|
|
|
![]() |
|
|
|
|
|
|
|
|
|
|
|
|
|
|
|
|
|
|
|
|
|
|
|
|
|
|
|
|
|
|
|
|
|
|
|
|
































