旭市 自社モデルハウス【売却済み】
|
スタイリッシュなネイビー×木目が映える、モダンな平屋。 ※外構はAIで作成されたイメージです。 |
木目天井とアーチ壁が彩る、上質で心地よい玄関。 |
|
吹き抜けの開放感と明るさが広がる、家族の憩いのリビング。 |
静かな環境で集中できる書斎と、落ち着きある寝室を両立。 ※インテリアはAIで作成されたイメージです。 |
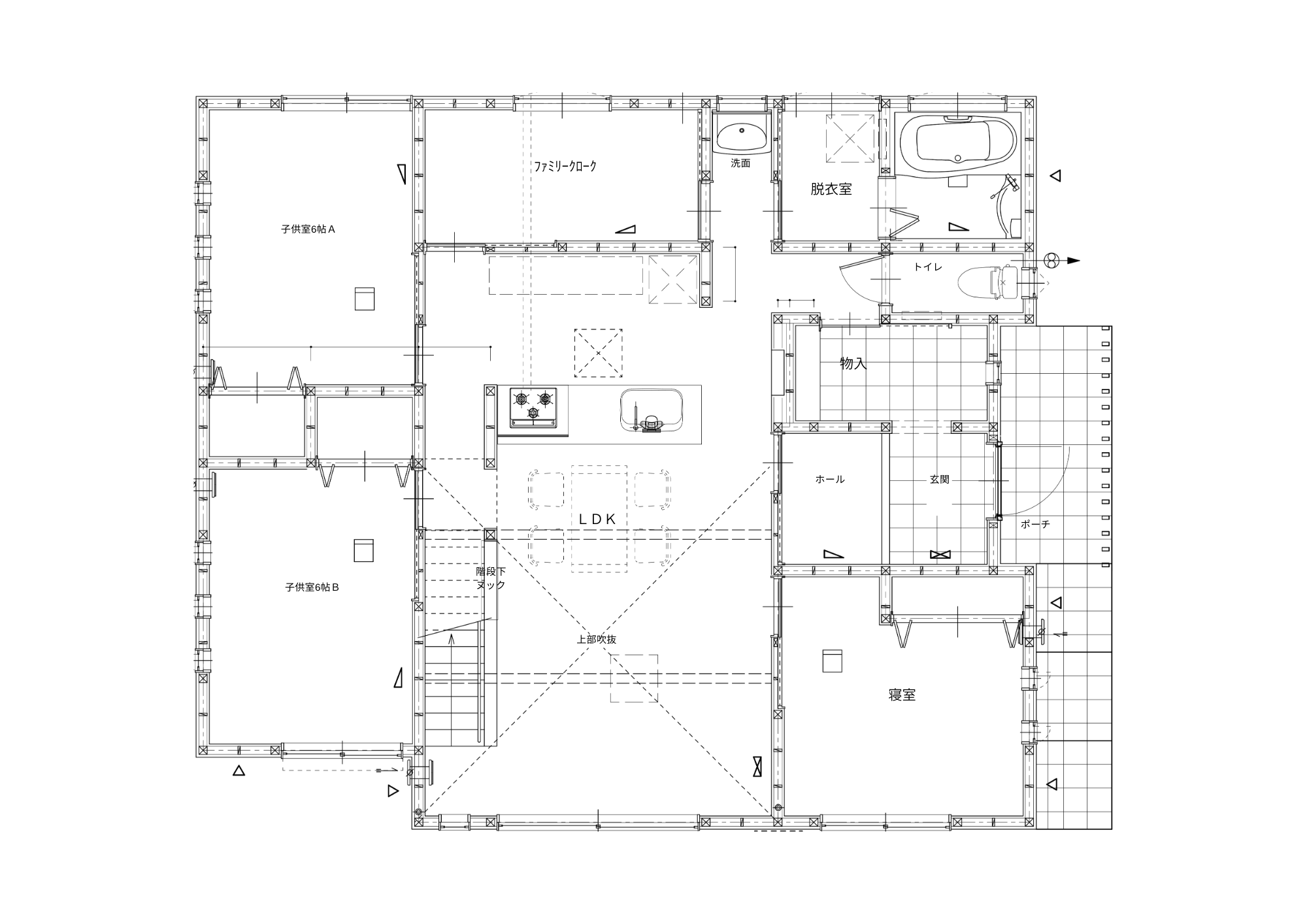
間取り紹介

らら♪ハウスなら、プランを選んで、ある程度の間取り変更ができます!
★階段の位置さえ動かさなければ、間取りを自由に変更できます。
(!)こんな場合は追加料金が発生します。
・室内ドアを追加したり、収納を増やしたりした場合、設計変更料は掛かりませんが、オプション費用がかかります。
・外観の形状を変えて面積を減らした場合、設計変更料がかかります。そこから減少分を差し引きます。
設計変更料金がどのような場合にかかるか詳しく知りたい方はこちらへ
▼その他の施工事例写真はこちら
|
|
|
![]() |
|
|
|
|
|
|
![]() |
![]() |
![]() |
![]() |
|
|
|
|
|
|
|
|
|
|
|
|
|
|
|
|
|
|
|
|
|
|
|
|
|
|
|
|
|
|
|
|
|
|
|
|
|
|
|
|
|
|
|
|
|
















































