古民家風リノベ
~自然に寄り添う四季を感じる和の住まい~
周囲の緑に包まれ、季節の移ろいを身近に感じながら暮らせる、和の趣が残る住まいへと丁寧にリフォームしました。
畳の部屋では、窓から差し込むやわらかな光の中でゆったりとくつろぎ、縁側では風の音や鳥の声に耳を傾ける穏やかな時間が流れます。
水まわりは綺麗に且つ使い勝手良くリフォームし、毎日の家事や暮らしが心地よく整うよう配慮しました。
懐かしさの中に新しさが息づくこの家は、静かな環境でのんびり過ごしたい方にぴったりの住まい。
自然と寄り添いながら、丁寧に暮らす喜びを感じられる場所です。
|
和の趣が広がる古き良き住まい |
和の趣が迎えるあたたかな玄関 |
|
やさしい光が満ちる和の空間 |
木の温もりが広がるナチュラルなキッチン |
|
温かな時間が流れるダイニング |
自然と調和するタイルが彩る洗面台 |
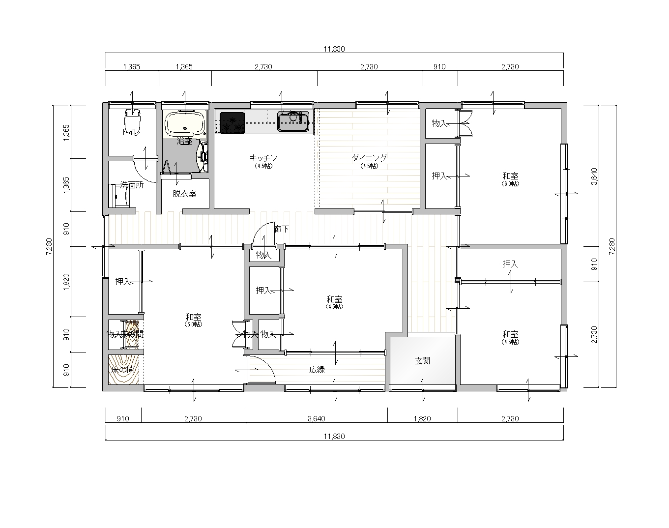
間取り紹介
|
|
▼その他の施工事例写真はこちら
|
|
![]() |
![]() |
|
|
|
|
|
|
|
![]() |
|
|
![]() |
|












