横芝光町 T様邸
~光と風を感じる、心地よい二階建ての暮らし~
のどかな風景の中に佇む、やさしいグリーンの外観が印象的な住まい。
共働きのご夫婦と小学生の兄妹が暮らしています。
家では家族がのびのび過ごせるようにと、LDKは大きな窓から光が差し込む明るい空間に
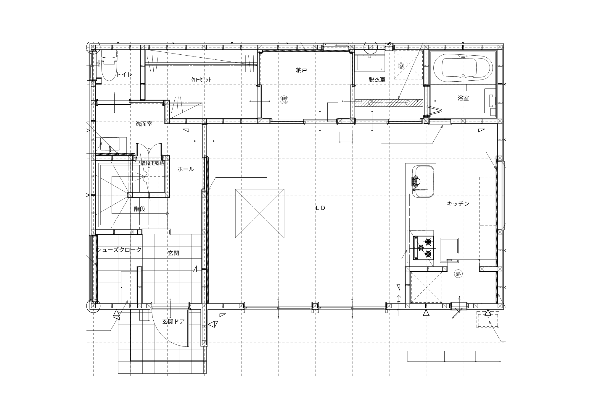
一直線に並んだキッチン・ダイニング・リビングで、家事をしながら子どもたちの様子を見守れます。
玄関にはゆとりある土間収納を設け、朝の支度もスムーズ。
2階にはそれぞれの個室を配置し、家族が「ちょうどいい距離」で心地よく暮らせる住まいです。
|
モスグリーンが自然に映える陽が差し込む家 ※外構はAIで作成されたイメージです。 |
落ち着いた色味のタイルが映える、すっきりとした玄関 |
|
折り上げ天井が、リビングに開放感と上質さを添えています
|
やわらかな光と明るい床が心地よさを感じさせる寝室です ※インテリアはAIで作成されたイメージです。 |
間取り紹介
【らら♪ハウス オリジナルプラン】
|
1階
|
2階
※オリジナルプランのため、設計変更料がかかります。 |
らら♪ハウスなら、プランを選んで、ある程度の間取り変更ができます!
★階段の位置さえ動かさなければ、間取りを自由に変更できます。
(!)こんな場合は追加料金が発生します。
・室内ドアを追加したり、収納を増やしたりした場合、設計変更料はかかりませんが、オプション費用がかかります。
・外観の形状を変えて面積を減らした場合、設計変更料がかかります。そこから減少分を差し引きます。
設計変更料金がどのような場合にかかるか詳しく知りたい方はこちらへ
▼その他の施工事例写真はこちら
|
|
|
![]() |
|
|
|
|
|
|
|
|
|
|
|
|
|
|
|
|
|
|
|
|
|
|
|
|
|
|
|
|
|
|
|
|
































