多古町 O様邸
ハウスプランナーより一言
~のびのび育つ、子どもたちと過ごす平屋の暮らし~
家族の時間も、自分の時間も大切にできる住まい。
共働きのご夫婦と、元気いっぱいの兄妹が暮らすおうち。
休日には家族みんなで庭にプールを出して遊んだり、ウッドデッキでランチを楽しんだりと、自然と笑顔が集まる平屋です。
外観はネイビー×ホワイトのツートンで、落ち着きの中にもやさしさを感じるデザインに。
玄関にはお気に入りの雑貨やドライフラワーを飾り、家族の“好き”を感じる温かな空間に仕上げました。
室内は子どもたちが裸足で走り回れる床と、明るい自然光が差し込むリビング。
短い家事動線で忙しい朝もスムーズに過ごせます。
家族の成長とともに暮らしを楽しむ、そんな“ちょうどいい”平屋のかたちです。
|
スタイリッシュで落ち着いた雰囲気のお家 ※外構はAIで作成されたイメージです。 |
ニッチがさりげなく玄関に上質感を添えています ※インテリアはAIで作成されたイメージです。 |
|
明るい空間に畳の温もりが映えるリビング ※インテリアはAIで作成されたイメージです。 |
やわらかな光に包まれた、心落ち着く畳スペース
|
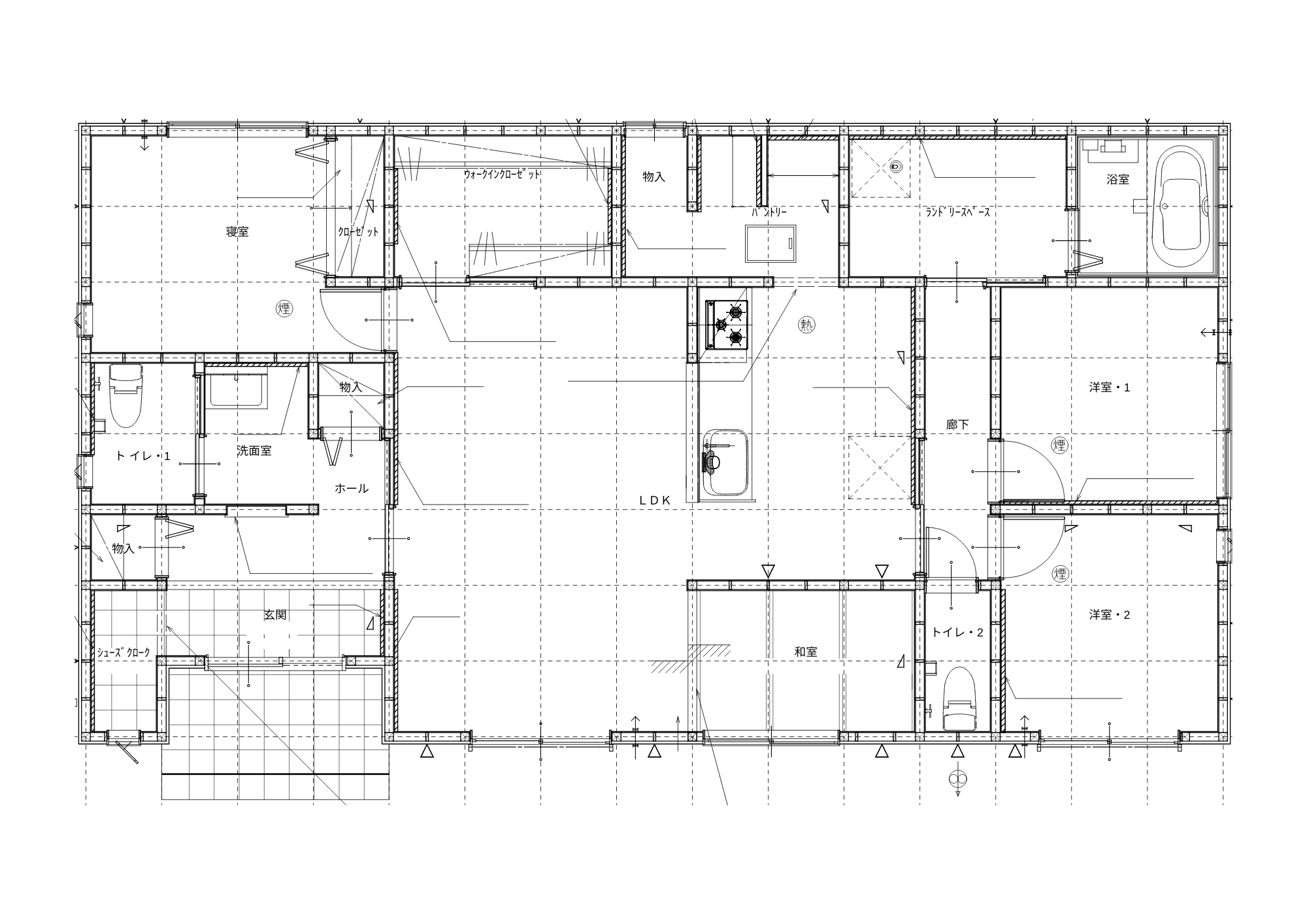
間取り紹介
|
お客様が選んだプラン 平屋№29
|
プラン変更後
変更箇所 |
らら♪ハウスなら、プランを選んで、ある程度の間取り変更ができます!
★階段の位置さえ動かさなければ、間取りを自由に変更できます。
(!)こんな場合は追加料金が発生します。
・室内ドアを追加したり、収納を増やしたりした場合、設計変更料はかかりませんが、オプション費用がかかります。
・外観の形状を変えて面積を減らした場合、設計変更料がかかります。そこから減少分を差し引きます。
設計変更料金がどのような場合にかかるか詳しく知りたい方はこちらへ
▼その他の施工事例写真はこちら
|
|
|
|
|
|
|
|
|
|
|
|
|
|
|
|
|
|
|
|
|
|
|
|
|
|
|
|
|
|
|
|
|
|
|
|
|
|
|
|
|
|
|
|
|
|
|
|







































