No.54 勉強もリラックスもできる2階リビングプラン
2階建て 4LDK 50.03坪


間取り紹介
|
1階
|
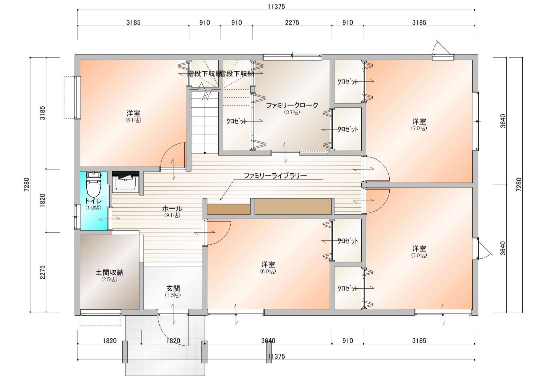
2階
|
★このプランのポイント
・開放感あふれる2階リビング設計!
日当たりと風通しが良く、プライバシーも守れる2階リビング。明るく心地よい空間で、家族のくつろぎ時間がより豊かに。
・ファミリーライブラリーで“学ぶ家”に
2階ホールに設けたファミリーライブラリーは、読書や勉強、在宅ワークにも最適。家族が自然に集まる知的空間です。
・収納力抜群&家事ラク動線
パントリーや土間収納、ファミリークロークなど、多彩な収納を完備。水回りも一直線で、家事効率を高める工夫が満載!
参考価格
◆ 建物本体価格 約24,250,381円(税込)
◆ 標準付帯工事価格 約4,378,000円(税込)
+土地代金
※上記は、参考価格になります。その他付帯工事の料金は含まれていません。
また、プラン内容には標準仕様だけでなくオプションが含まれている場合があります。
-上記の価格に含まれていないものはこちら―
カーテン&カーテンレール・浄化槽設置工事・駐車場工事・犬走り・補助金申請代行料・土地の仲介手数料・エアコンとエアコンの用の穴あけ・井戸掘り・フェンス工事・ポスト・都市ガスまたはガス会社を指定する場合・農地申請や開発許可等の各種申請費用・アンテナ工事・オール電化仕様に変更・室内の照明器具・フラット35申請や検査等一式費用・登記費用・測量費用・本下水への接続費用・上水道取り出し・地盤改良工事・間取り変更・住宅ローン手数料 等
この商品プランについて知りたい方はこちらへ


